Как сделать римский стул своими руками
Конструкция скамьи подойдет для человека массой от 60 до 90 кг и собрана с применением — куска стальной трубы, труб от рамы дорожного велосипеда и других подручных материалов.
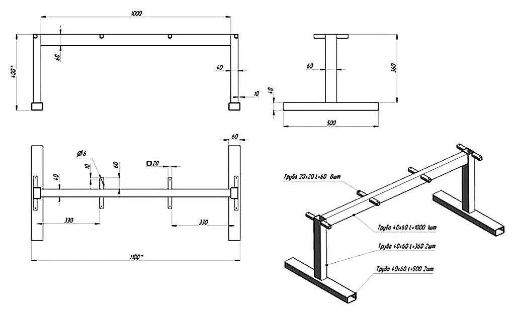
Схема рамы
Для изготовления римского стула понадобятся: стальные трубы — 3,5 м; ДВП или доска — 1000×400 см; плотный поролон — 0.5 кв.м; металлические полоски; болты с гайками ~ 14 штук; дрель, сверла, болгарка или пила по металлу; сварочный аппарат.
Схема стального каркаса показана на фото. Передняя стойка может иметь высоту 500-800 мм. В целях лучшей устойчивости тренажера наклон передней стойки лучше сделать наружу. Окончательная длина штанги для крепления упора для ног регулируется под конкретного пользователя. Длина опорных ножек тренажера – может варьироваться в размере от 400 до 900 мм. Для лучшей устойчивости на концы труб – ножек надеваются резиновые накладки от руля велосипеда. Конструкция имеет возможность регулировки высоты упора для ног под конкретнго человека. Этот узел собран оригинально с применением фиксатора трубы крепления седла от рамы велосипеда. Центральная стойка усилена в верхней части металлической косынкой. Все металлические части каркаса сварены между собой электросваркой. Если вы никогда не занимались электросваркой, то можно попрактиковаться ;). Доска скамьи состоит из трех кусков и прикручена к каркасу при помощи болтов. Болты пропускаются через отверстия доски, труб и крепежных планок. Места и способы крепления смотрите на фото. Головки болтов должны быть утоплены и не выступать наружу доски. Валики опоры для ног сделаны из поролона, закреплены изолентой и закрываются чехлами из ткани.
Римская скамья
Вид сверху
Вид сбоку
Вид снизу
Пластинки для крепления
Штанга упора для ног
Узел регулировки высоты
Планка крепления досок
Поролон упора для ног
Регулярно тренируясь на римском стуле можно здорово укрепить мышечный корсет и сделать кубики на животе ;), да и сэкономить 1 – 4 тысячи рублей на покупке римской скамейки. Порядок выполнения упражнения на пресс и некоторые рекомендации приведены ниже
1. Лягте на скамью и плотно зафиксируйтесь при помощи упора для ног.
2. Отклонитесь максимально назад – это будет исходное положение.
3. Поднимаем тело наверх на выдохе.
4. Не поднимайте тело в зону расслабления мышц пресса, мышцы должны быть всегда напряжены! При первых упражнениях проверьте устойчивость тренажера на опрокидывание вперед, определите место потери равновесия и избегайте его.
5. Задержавшись в верхнем напряженном положении отклоняем корпус в исходное положение. Отклоняем корпус медленнее, чем поднимали наверх.
Начальное положение
Верхнее положение
Упор для ног
Не следует выполнять упражнения с отягощением для избегания возможных повреждений позвоночника. И если вы делаете первые подходы к тренажеру, то нагружайте тело постепенно, например, начиная от 5-10 подъемов в первый день и с добавлением по 1-2 упражнения в последующие дни. Материал для публикации любезно предоставил Кондратьев Сергей г. Белебей Республика Башкортостан
Скамейки трансформеры чертежи
Ниже еще можете посмотреть подборку чертежей для проектов раскладных скамеек столов своими руками.
Детская скамейка с навесом
Согласитесь, выглядит такая лавочка очень мило. Хотите узнать, как сделать такую скамейку с навесом своими руками? Вот иллюстрации с пошаговыми схемами, которые помогут вам собрать скамейку легко и быстро. Всю подробную информацию, включая список материалов, распиловку с размерами и необходимые инструменты вы можете прочитать на сайте, ссылка находится ниже под этой небольшой галереей. Одно примечание: две доски 1×6 длиной 2,5 метра разрежьте на 5 частей по 41 см, а оставшаяся часть будет иметь длину примерно 39 см. Оставьте этот короткий кусок для концов спинки сиденья, которые немного короче, чтобы сохранить доски.
Вот короткая инструкция, как сделать детскую скамейку своими руками с чертежами. Сначала прикрепите перекладины на боковых стойках, как показано на схеме, используя саморезы длиной 5 см и клей. Проверьте, чтобы все углы были прямые. Соберите сиденье, затем прикрепите ножки. Примечание: для детей старшего возраста сиденье можно установить выше. Боковые полочки, это для цветочных горшков. Вы можете разместить, как вам нравится, если это вам это не нужно, просто обрежьте концы. Убедитесь, что расстояние между брусками 2×2 сверху такое же, как и у сиденья. Прикрутите саморезами и приклейте. Заполните все отверстия шпатлевкой. При необходимости нанесите дополнительные слои. Отшлифуйте и протрите влажной тканью. При необходимости используйте грунтовку или кондиционер для дерева.
Источник фото: www.ana-white.com/woodworking-projects/childs-bench-arbor
Скамейка с навесом чертежи
Вот небольшая подборка чертежей садовых скамеек с навесом, посмотрите, возможно, что-то пригодится для обустройства садовой мебелью вашей дачи.
Чертеж скамейки вокруг дерева
Скамейки вокруг дерева выглядят великолепно и отлично вписываются в ландшафтный дизайн сада или дачи. Если у вас есть такая возможность, вот чертеж скамейки вокруг дерева своими руками. Это не дорогой и не сложный проект, прочитайте инструкцию на сайте и с помощью представленных здесь чертежей вы сможете сделать замечательную лавочку вокруг дерева. Ссылка на первоисточник находится ниже.
Источник фото: howtospecialist.com/outdoor-furniture/8058/#more-8058
Ниже можете посмотреть еще несколько чертежей подобных проектов скамеек вокруг дерева, которые можно сделать своими руками.
Скамейка из бетона чертежи
Скамейки из бетона отличный вариант для сада, парка, дачи, такая уличная мебель надежная, долговечная и выглядит очень стильно. Здесь мы подобрали для вас пример с чертежами, как сделать классическую лавочку из бетона и дерева. Для тех, кому хоть раз приходилось иметь дело с цементом, это очень простой проект. Чтобы узнать все подробности о процессе изготовления скамейки, посмотрите видио на сайте автора этого проекта, ссылка ниже.
Справа на чертеже показаны габариты скамейки из бетона и дерева. Бетонные формы шириной 5 см и толщиной 2 см. Но это конкретно для этой лавочки, это можно изменить в зависимости от размеров скамейки
Обращайте внимание на основные моменты: обязательно используйте гладкую фанеру. Саморезы или шурупы закручивайте обязательно снаружи формы
Используйте клей, где будет контакт дерева и бетона. Установите кронштейны на досках.
Автор ДжастинИсточник фото: www.remodelaholic.com/modern-concrete-and-redwood-bench-tutorial/
Другие варианты самодельных тренажеров
Оздоровительные тренажеры для спины отличаются простотой конструкции. Например, тренажер Евминова представляет собой сосновую доску, оснащенную креплениями и ручками-фиксаторами. Приспособление следует закрепить так, чтобы можно было менять угол наклона – это позволит растягивать мышцы спины с любой интенсивностью.
Если приходится подолгу работать за компьютером, стоит сконструировать сиденье Толстунова. Тренажер состоит из деревянного сиденья, одной точки опоры и основания, которое держит всю конструкцию. Тренажер не требуется закреплять на обычном стуле, а сидение на нем улучшает кровообращение и тренирует короткие мышцы позвоночника.
Тренажер Разумовского сконструировать сложнее. Он также выполнен из дерева, но вытачивание роликов требует навыков обращения с токарным станком.
Однако самым сложным для проектирования и монтажа считается тренажер Ахметова. Это биокинетическое устройство состоит из прочного каркаса, к которому прикрепляются подвижные ручные и ножные опоры, а само движение на тренажере напоминает бег дикой кошки.
Для хоккея с шайбой продается синтетический лед, на котором удобно отрабатывать пасы, броски, щелчки и дриблинг. Балерины, гимнастки и танцовщицы добиваются красивых стоп и высоких подъемов, засовывая ноги под диван – дешево и сердито.
ЧИТАТЬ ДАЛЕЕ: Стили ширм японский и восточный складные в стиле прованс и лофт в скандинавском и китайском стилях
Футболисты отрабатывают обводки при помощи устойчивых и неустойчивых стоек – невысоких палок, прикрепленных к крестовине либо гвоздями, либо жесткой пружиной. Лыжники и пловцы прорабатывают мышцы плечевого пояса при помощи дров или топора, при этом максимальное усилие приходится на начальную фазу движения.

Доступные тренировки – это реальность. Надо только искренне любить свой вид спорта и находить возможность уделять ему каждую свободную минуту.
В следующем видео вы узнаете, как самостоятельно сделать тренажер по методу Бубновского.
Выбор материала для изготовления, советы по выбору
Для изготовления скамьи—трансформера необходимо будет приобрести струганные обрезные доски и брус. Лучше всего для такой конструкции подойдёт лиственница, берёза, сосна, бук, ясень или дуб (если получится, так как он очень дорогой).
Доска должна быть хорошо отшлифована, иметь высокое качество и соответствовать всем стандартам соответствия. Если вы покупаете доску на лесопильном предприятии обязательно поинтересуйтесь наличием сертификата качества на их продукцию, так как под видом обрезной доски дуба вам могут продать совершенно другой товар, и если вы плохо разбираетесь в древесине, то лучше всего возьмите с собой плотника, который разбирается в видах доски и её качестве.
УНИВЕРСАЛЬНАЯ СИЛОВАЯ РАМА (1 чертеж)
Как известно, для эффективного наращивания мышечной массы в первую очередь необходимы базовые упражнения:
тяжелые приседы; жимы лежа; становые и мертвые тяги; сгибания рук со штангой; подтягивания; тяги к поясу в наклоне, и др.
Имея в своем распоряжении универсальную силовую раму, вы сможете вообще обойтись без какого-либо дополнительного оборудования. Тренажер не занимает много места и позволяет установку даже в малогабаритной квартире, т.е. имея универсальную силовую раму вы можете заниматься у себя дома, причем домашние занятия не уступят по эффективности занятиям в профессиональном атлетическом зале. Кроме того, вы сможете обойтись без тренировочного партнера или страхующего.
В тренажер входят:
силовая рама; перекладина; параллельные брусья; наклонная скамья; горизонтальная скамья.
Разные скамейки
Самая простая, но и замечательно прочная спортивная лавка-«ипполитовка» может быть изготовлена по чертежу на рис; настил – прочная доска от 40 мм. С ней хорошо знакомы те, кто проходил в армии курс молодого бойца; по крайней мере, в прошлые времена. «Духи»-горожане скоро начинали смотреть на ипполитовку с изумлением и опаской: сколько, оказывается, всяких упражнений можно на ней проделывать! И она же отлично входит в состав 4-опорного тренажера.

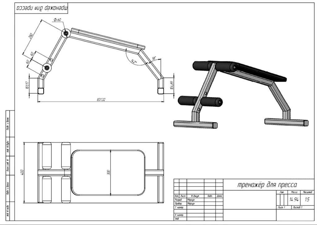
На след. рис. – наклонная скамья для пресса. Такую, ввиду ее компактности и пользы, не помешает завести отдельную, если места в жилище достаточно. Вследствие отсутствия прямых углов материал послабее – профтруба 40х40. Упоры для ног – пруток 10 мм с резьбой на концах, обрезиненный до нужного размера. Резиновые муфты съемные: нижний упор регулируемый, а верхний убирается, если необходимо делать упражнения, при которых он мешает.

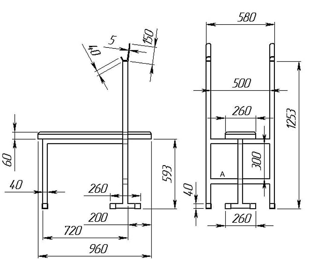
Далее на рис. – компактная силовая скамья со стойками для штанги. Упражнения на ней делают в основном сидя.Можно также качать пресс, глубоко прогибая спину. В таком случае упорами ног будет поперечная балка А, и тогда ее нужно обтянуть чем-то мягким или надеть резиновую муфту. Материалы – профтруба 40х40, а держатели штанги из стальной полосы толщиной от 6 мм.

Следующий образец – атлетическая скамья уже для крепких ребят, уверенно управляющихся со штангой веса, равного их собственному, т. наз. парта Скотта. Материалы, соответственно – профтруба 60х60х2,5 и 50х50х2. Держатели грифа из такой же полосы, как и в пред. случае; сиденье и столик из фанеры от 20 мм.

Несколько тренажеров
Как намертво связать скамью-«ипполитовку» со стойкой для штанги, превратив в достаточно компактный 4-опорный тренажер, показано слева на рис. Там же справа – размеры и конструкция скамейки-трансформера под ту же раму. Основной материал там и там – профтруба 40х60. О фиксаторах стоек с держателями штанги вспомним ниже.

На след. рис. – чертежи с материальной ведомостью простого 3-опорного стационарного нерегулируемого тренажера с горизонтальной скамьей. Он более подходит для частных домовладений с достаточной величиной полезной площади. Изюминка данной конструкции – соединение дальней ноги скамьи с ее несущей балкой звеном под 45 градусов. Благодаря оптимальному распределению эксплуатационных нагрузок удалось выполнить снаряд, на котором можно делать упражнения с весами более 100 кг, из профтрубы 50х50.

Наконец, далее на рис. – чертежи и спецификация элементов на полнофункциональный домашний тренажер со скамьей-трансформером для жима и пресса
Обратите внимание на узел, выделенный красным. Это – наиболее простой и надежный для исполнения в домашних условиях способ фиксации стоек штанги
Штыри-фиксаторы (диаметром от 12 мм) будут, конечно, понемногу изнашиваться, но их никогда не заклинит и не закусит.

Еще о штанге
Как уже сказано, не удержанная на весу штанга способна причинить тяжелые увечья, вплоть до фатального исхода. И направить ее гриф в держатели в таких случаях нереально. Зато реально – предусмотреть 2 отрезка цепи, надежно закрепленные на стойках штанги. На других концах цепей – карабины, их набрасывают на гриф. Длину цепных страховочных звеньев берут такой, чтобы, держа штангу на полностью вытянутых руках, цепи провисали, но гриф отпущенной штанги не доставал до груди. Чтобы карабины не сползали на грифе, их достаточно примотать скотчем. Вдруг штанга рухнет, скотч, конечно, не выдержит, оба карабина съедут на один конец грифа, но дело обойдется испугом и, возможно, побитым полом.
О деревянных атлетических скамьях
Со штангой на деревянных спортивных снарядах заниматься нельзя, их конструкция не выдержит. Зато в ситуациях, возникающих вследствие неловкости тренирующегося, дерево «отдает» по телу куда менее чувствительнее, чем металл. Поэтому деревянными скамейками для жима и пресса предпочтительно пользоваться начинающим и несовершеннолетним. Кроме того, деревянные спортивные скамьи и тренажеры можно соорудить на даче или в загородном доме из остатков стройматериалов.

Конструкция наклонной деревянной скамьи для пресса и спецификация к ней показаны на рис., а на след. рис. – чертежи деревянного тренажера с наклоняемой скамьей и рычагом для упражнений ногами с грузом. Чтобы дерево держало эксплуатационные нагрузки, применена блочная система подвешивания грузов: они висят на нисходящих ветвях троса А. Поперечные балки Б – стальные обрезиненные.

Оригинальная лавочка без спинки
Интересную лавочку для садового участка можно изготовить из бруса и досок. В этой модели в качестве опорных ножек применяются бруски. При желании их можно заменить на обработанные бревнышки.
Для работы понадобится:
- доска 30-40 мм толщиной,
- брус сечением 40 Х 40 мм,
- крепежные элементы.
Порядок работы.
- В соответствии с чертежом из досок и бруса изготавливают детали сиденья и опорные элементы.
- Заготовки шлифуют и покрывают защитным средством от гнили.
- Размечают заготовки для ножек, в них сверлят отверстия для штифтов.
- Монтируют детали.
- Поверхности красят или покрывают лаком.

Это один из простых способов, как сделать лавочку на даче. Если для изготовления опорных ножек применить березовые бревнышки, то места соединения необходимо обработать рубанком и подвернуть шлифовке для прочного соединения.

Изготовление дачных скамеек из дерева своими руками в стиле этно
Стилевые направления дизайна этно и рустик часто используются в дизайне помещений. Загородный дом, коттедж или дача – прекрасное место для создания экологичного и природного уголка, подходящего для семейного отдыха. Этот дизайн можно продолжить и в саду. Для этого достаточно сделать скамейку со спинкой своими руками из бревен (Рис. 1) и других природных материалов.
Полезный совет! Для строительства конструкции можно использовать бревна с корой или без нее. Обрабатывать материал или оставить его в первозданном виде – зависит от ваших пожеланий и дизайна участка.
Скамейки, изготовленные из бревен, отличаются самобытностью и экологичностью
Технология изготовления дачной скамейки своими руками из бревна
Чтобы сформировать сиденье, достаточно распилить ствол дерева вдоль. Сделать это можно ровно посередине (в зоне диаметра) или сместив пилу ближе к краю (в зоне среднего диаметра). Спинка изготавливается из ствола дерева с меньшей толщиной или же вы можете выполнить срез ближе к краевой части. В результате этот элемент должен быть тоньше и легче, чем деталь сиденья.
Рис. 2. Садовая скамейка из бревен во дворе загородного дома
Ножки можно сделать из остатков бревна. Их соединяют с деталью сиденья с помощью металлических штифтов. Делается это так:
- В деталях, которые нужно соединить, выполняются отверстия под штифты в соответствующих местах. Диаметр отверстий должен быть чуть меньше, чем диаметр крепежа.
- Штифт забивается в одно из отверстий примерно на середину своей длины.
- Поверх свободного края штифта насаживается вторая соединяемая деталь и также забивается. В этом случае удары приходятся не на штифт, а на древесину.
Стили этно и рустик отлично подходят для оформления приусадебного участка
Крепеж забивается с помощью кувалды или молотка. Поскольку древесина является по своей структуре достаточно мягким материалом, удары молотка могут повредить ее поверхность. Чтобы избежать этого, нужно подложить под инструмент ненужную доску.
Штифты обеспечивают надежное соединение всех деталей. Чтобы усилить фиксацию, можно установить 2-3 штифта.
Скамейка со спинкой, изготовленная с использованием бревен
Стиль этно в дачных скамейках со спинкой своими руками: дополнительные идеи
В стиле этно можно создать конструкцию с нестандартным исполнением. Изюминкой может стать, например, изготовление скамьи с применением изогнутых веток разного диаметра. Перед сборкой изделия эти ветки обрабатываются и ошкуриваются. Другими словами, с них снимается кора, а затем поверхность шлифуется наждачной бумагой. Для сборки сиденья должна использоваться необрезная доска. Она обрабатывается аналогичным способом.
Различные варианты деревянных скамеек, созданных в стиле этно
Обратите внимание! Все элементы этой конструкции обладают скругленными формами, а доски сиденья смотрят торцами вперед. Если на вашем дачном участке имеется плетеный забор, вы можете использовать этот же вариант конструкции с некоторыми изменениями
Короткие доски сиденья можно заменить длинными, расположив их вдоль. Спинка формируется по принципу плетения из веток средней толщины, которые хорошо гнутся
Если на вашем дачном участке имеется плетеный забор, вы можете использовать этот же вариант конструкции с некоторыми изменениями. Короткие доски сиденья можно заменить длинными, расположив их вдоль. Спинка формируется по принципу плетения из веток средней толщины, которые хорошо гнутся.
Скамейка в стиле рустик станет уникальным объектом на садовом участке
Чтобы выполнить плетеную спинку, необязательно обладать какими-либо особыми навыками. У вас может получиться не очень аккуратный результат, но этого и не нужно. Спинка должна быть простой и ненавязчивой, грубое плетение только увеличит ее декоративные свойства. Ветки можно располагать плотно или, наоборот, оставлять зазоры между ними, чтобы ваша скамья «дышала».
Скамейка из бревнышек установлена на закрытой веранде загородного дома
Сгибания рук на скамье Скотта
На сегодняшний день практически в каждом тренажерном зале, будь то в мегаполисе или в провинциальном городе, имеется специальная скамья для выполнения ручных упражнений, а именно тренировка бицепсов и предплечий. Эта скамья носит имя ее изобретателя Ларри Скотта.
Сгибания рук на скамье Скотта
Техника выполнения
Вопреки тому, что упражнения на скамье Скотта не относятся к числу технически сложный, однако, тренирующиеся часто допускают определенные ошибки при их выполнении. Поэтому стоит подробно рассмотреть все элементы упражнений.
Первый шаг
Сперва стоит тщательно настроить пюпитр, придав ему должную и удобную высоту для положения рук. Если тренировки проходят с ez-штангой, то ширину хвата следует определять по насечкам на грифе. Обязательно нужно следить за положением ладоней: их следует немного пригнуть вовнутрь и направить вперед.
Второй шаг
Работа мышц
Неспешно опускать штангу на вдохе, разгибая локтевой сустав. Тем самым происходит полное растягивание бицепса. Затем осуществить подъем снаряда, прилагая только усилия бицепсов до тех пор, пока они полностью не сократятся. Гриф штанги должен при этом подняться на высоту плеч. Выдох производить в момент усилия. Максимальное сокращение мышц производить в завершающей точке амплитуды.
Напряжение в этом случае нужно сохранять в течение двух секунд. «Отбивать» вес, когда руки возвращаются в прямое положение, не стоит. Обозначенную последовательность действий повторять определенное количество раз, например, по формуле 3×8.
Описанный выше пример относится к классическому способу выполнения упражнений на скамье Скотта. Но чем заменить штангу? И можно ли это сделать? Допускается использование вместо штанги обыкновенных гантелей.
Такой способ часто применяют для повышения концентрации. Часто можно заметить, как в качестве отягощения используют небольшой блок, увенчанный прямым стержнем, который выступает в роли заменителя грифа штанги.
Сгибания рук на скамье Скотта: Видео
https://youtube.com/watch?v=E4orlomL4GY
Какие мышцы работают
- Таргетируемые:
- бицепсы;
- брахиалис.
- Синергисты:
- брахирадиалис;
- круглый пронатор.
- Стабилизаторы:
- ромбовидные;
- разгибатели спины;
- трапеции;
- сгибатели запястья.
При сгибании рук на скамье Скотта напрягаться должны только целевые группы мышц – бицепсы. Главное требование при этом – оптимальность, то есть все усилия стоит направить на внутреннюю головку двуглавой мышцы. Часть работы распределяется и на предплечье, так как именно с его помощью удерживается штанга.
Однако это должна быть единственная нагрузка, которую получат предплечья. Неправильная техника при тренировке рук может привести к тому, что нагрузки из бицепсов будут уходить в передние дельты или в предплечья. Это неправильно. Подключать дополнительные группы мышц не нужно.
Нюансы тренировки
Скамья Смитта
Кажущаяся простота упражнений на самом деле обманчива. Поэтому не стоит пренебрегать советами, которые дают профессионалы по поводу верной техники выполнения упражнений. Прежде всего, подстраивать тренажер перед занятиями нужно таким образом, чтобы верхняя часть достигала середины груди либо чуть ниже.
Но ни в коем случае не выше. Это еще один из способов профилактики травм при упражнениях. Другой совет по этому поводу – не опускать штангу полностью. Следует оставлять локтевой сустав слегка согнутым. Также желательно присутствие рядом ассистента, который сможет подать и принять снаряд.
Голову не опускать, а смотреть только прямо перед собой: для этого может помочь выполнение упражнения перед зеркалом. Для лучшей стабилизации и меньшей усталости позвоночник должен сохранять нейтральное положение, а сама поза при занятиях на скамье должна быть сбалансированной. Не нужно горбиться и округлять плечи.
Грудь держать расправленной. Каждое движение со штангой выполнять медленно, с должной концентрацией и контролем, без использования силы инерции. Тягу снаряда осуществлять не за счет кистей рук, а используя силу бицепсов.
Заключения
В итоге можно сделать вывод о том, что сгибания рук на скамье Скотта наиболее необходимы тем, кто плохо «чувствует» бицепсы. Благодаря изолированному характеру упражнений можно нагружать именно эту группу мышц.
Составляя индивидуальный комплекс занятий, следует разбавлять тренировки бицепсов, например, упражнениями с гантелями. Накачивание бицепсов несет в себе как эстетическую сторону, так и способствует росту показателей при жиме лежа.
Читайте другие статьи в базе знаний блога.
О размерах
Здесь на рис. даны размеры 3-опорных тренажеров для людей среднего роста. Слева – полнофункциональный со съемной партой, ручными и ножными рычагами. Основные материалы – профтруба 60х40х2 и круглая 30х2; упор для подъема доски – труба 20х2. Доска – фанера 16 мм с обшивкой, как описано далее.

Размеры домашних тренажеров для людей среднего роста
Справа – простой компактный. Высота скамьи над полом подбирается индивидуально, по мерке от плотно стоящей на полу пятки до внутреннего сгиба коленного сустава. Основные материалы как и в пред случае; регулируемая задняя ножка позволяет трансформировать снаряд для упражнений сидя. Но помните: штангу с этого тренажера нужно брать только с подхода!
Виды тренажеров для пресса
Существует несколько разновидностей тренажеров для пресса.
В тренажерных залах обычно используются:
- Типовая скамья для пресса. Такая скамья может располагаться под разным углом. Больший угол наклона доски требует больших усилий, но при этом позволяет добиться внушительного результата. Подобная скамья считается самым дешевым вариантом и стоит в пределах двух тысяч рублей.
- Доски с регулируемым наклоном спинки. Прекрасный вариант для развития сразу нескольких групп мышц: живота, талии, ягодиц и спины. Средняя стоимость составляет около трех тысяч рублей.
- Скамьи с выгнутой спинкой. Тренировки с данной скамьей проходят с повышенным уровнем нагрузки. В основном такие тренажеры используют продвинутые атлеты, которые занимаются несколько лет.
- «Римские» скамейки для пресса. Считаются самым «продвинутым» видом тренажера. Позволяют накачать кубики живота с поднятыми ногами. При постоянных тренировках можно добиться красивого рельефа.
Скамья для пресса практически не имеет недостатков. Стоит учесть, что высоким людям крайне проблематично подобрать доску под индивидуальные параметры тела.

Преимущества использования скамейки
Купив или изготовив скамейку самостоятельно, можно приступать к первым активным тренировкам.
Достоинства использования скамьи для пресса:
- Возможность контролировать каждое свое движение.
- С помощью специального контроля можно увеличивать или уменьшать нагрузки, когда это потребуется.
- Выполнять упражнения на скамье с дополнительным весом намного безопаснее.
- Обычные тренировки становятся не только удобнее, но и в несколько раз продуктивнее.
- На скамье для жима и пресса можно выполнять намного больше типов физических упражнений.
Используя в арсенале оборудование такого типа, можно добиться прогресса достаточно быстро. Рельефный пресс и накачанное тело не заставит себя долго делать. С помощью скамьи можно выполнять намного больше упражнений, в том числе с гантелями и штангой.
Тренажер своими руками
Современную мультистанцию можно не только купить, но и сделать своими руками в домашних условиях. Создание многофункционального тренажера потребует определенных материалов и навыков, но позволит сделать уникальную модель по своим персональным требованиям. Скамья для жима лежа – популярный спортивный тренажер. Существует множество видов.

Типы тренажеров, которые можно сделать самостоятельно
Самому можно сделать как железную, так и деревянную с нужным покрытием. Работа начинается с поиска или создания чертежей.
Пример чертежа тренажера, который можно создать своими руками:
- Помимо чертежей понадобится сварочный аппарат и достаточное свободное пространство.
- Спортивное устройство, сделанное своими руками, позволит выполнять несколько видов упражнений в зависимости от конструкции.
Минимальный и оптимальный набор:
- Силовая скамья.
- Установка в виде турника.
- Установка в виде брусьев.

Материалы для тренажера — профильные стальные трубы
Из материалов потребуется несколько труб с круглым и квадратным сечением, поролон и прочный материал для обшивки подлокотников, лист ДСП. Трубы с квадратным сечением нарезаются:
- 40 см – две штуки,
- 55 см – три штуки,
- 65 см – две штуки,
- 75 см – одна штука,
Для труб круглого сечения длина:
- 75 см – одна штука,
- 20 см – две штуки,
- 15 см – шесть штук.

Создание конструкции для рамы тренажера
Трубы свариваются в единую конструкцию согласно чертежам. Из ДСП вырезается прямоугольная силовая скамья, обклеивается поролоном и обтягивается материей. Силовая скамья может изготавливаться и из досок. Главное — качественное и удобное покрытие. Ведь деревянная скамья менее прочна и ее советуют только для начинающих.

Нижняя часть рамы самодельного тренажера
Чертежи и сложность выполнения работ
Решив смастерить домашнюю мультистанцию своими руками – продумайте ход работ, а также просчитайте возможные затраты на покупку материалов и предполагаемое время работы.

Готовая рама тренажера
Чертежи некоторых тренажеров,например, для бега – очень сложные и сделать такой спортивный снаряд своими руками практически невозможно без дополнительной помощи и дорогостоящих материалов. Беговая дорожка, как пример, сделанная своими руками, получится и излишне громоздкой и неудобной в использовании. Такой тренажер проще и удобнее купить в магазине.

Готовый тренажер можно дополнить различными снарядами
Своими руками можно сделать несколько вариантов брусьев или силовой скамьи. Для начала это будет хорошим опытом и позволит оценить свои силы перед переходом к более сложным тренажерам.
Хороший пример простого, но функционального чертежа тренажера своими руками вы сможете подобрать в этой книге:

Книга чертежей для домашних тренажеров
Сделанный своими руками тренажер может компактнее покупного, но одновременно с этим отвечать поставленным перед ним задачам.
Гимнастический шар
Его сложно назвать спортивным оборудованием. Однако гимнастический шар – один из наиболее эффективных способов вернуть прессу упругость. Во время тренировки мяч одновременно укрепляет брюшную мускулатуру и улучшает осанку. Отлично подходит при восстановлении/реабилитации людей после полученных травм.
Вариантов занятий с шаром много. Ежедневные тренировки не приедаются и всегда интересные. Одно из эффективных упражнений:
- Садимся на гимнастический мяч, как на обычный стул.
- Ноги максимально выпрямляем.
- Ступни должны все время находиться на полу.
- В такой позиции удерживаем равновесие.
- Первое время это делать сложно, но организм очень быстро приспосабливается.
Что необходимо для изготовления
Для начала разобьем все на пункты и инвентарь.
Штанга
Для изготовления грифа нам потребуется металлическая труба диаметром 30мм, толщина 6мм. Длина грифа должна быть от 1,6 м до 2м.
Разделители
, которые будут отделять рабочую поверхность для хвата и место для блинов. Для разделителей нам понадобится 2 прочных болта либо вырезаем 2 кусочка металлической пластины диаметром 50 мм. Рассверливаем центр пластин на 30мм, и у нас готовые разделители, остается только наварить на трубу.
Замки для грифа.
Они пригодятся для прочной фиксации блинов на штанге. Можно приобрести 2 пружинных замка либо берем 2 куска трубы, диаметром от 31 мм и просверливаем в них отверстие и закрепляем болтом.
Блины.
Для изготовления блинов нам потребуется изготовить форму из досок и металла. Для наполнения будем использовать бетон высокой марки, и армировать проволокой.
Чтобы конструкцию блинов сделать более прочной и более красивой, нужно будет покрыть блины эмалью для бетона, это обеспечит защиту от влаги, и с них не будет сыпаться бетонная пыль.
Гантели
Для изготовления гантелей нам потребуются: 2 отрезка трубы, формы под блины, замки. Технология изготовления такая же, как у штанги. Желательно изготовить все сразу.
Для скамьи нам потребуется: квадрат металлический, размеры 50x50x4. Длина всего около 8,3 метра. Доска размерами 1,3 на 0,3м. Она потребуется для основы.
Пластина металла,
для изготовления лепестков. Они устанавливаются на стойки скамьи и служат держателями для штанги.
Для изготовления функциональной станции, в которой будут турник, и брусья нам потребуется металл для основания, трубы для перекладин. Бетон для заливки конструкции. При условии, что станция будет устанавливаться на улице. Также стоит доварить перекладину на высоте для крепления гимнастических колец и боксерской груши.
Силовая рама,
конструкция сложная, требует использования точных чертежей и большого количества материалов. Так что ей стоит заниматься отдельно.
Боксерская груша
Для изготовления боксерской груши потребуется либо обычные мешки для хранения круп, либо кирза или брезентовая ткань. Размеры для изготовления – высота минимум 1 метр, вес нужно учитывать от 40 до 60 кг. 2 металлических кольца, которые будут давать форму боксерскому мешку, 4 карабина, метр цепи и сама набивка. В качестве набивки можно использовать ветошь, старые вещи и опилки.
Также помимо всего следует иметь сварочный аппарат и все принадлежности к нему, цемент, песок, щебень и думающую голову, которая будет отвечать за процесс изготовления
Выбор правильного тренажера
Первый критерий выбора – цена. Разница между дорогими и дешевыми тренажерами в максимальном соответствии биомеханике человека. Над созданием хорошего спортивного снаряда работает команда инженеров и специальных дизайнеров, тренеров. В итоге получается тренажер не только эффективный, но и отвечающий стандартам безопасности, и учитывающий все нюансы естественных движений тела. Это означает еще и полное отсутствие ненужной дополнительной нагрузки на суставы и сухожилия.

Тренажер гиперэкстензия горизонтальная
Еще важный параметр выбора – материал. Силовой тренажер для дома лучше выбирать из листовой стали. На срок службы тренажера влияет прочность соединений и качество основной рамы. Дешевые модели опасны тем, что расшатываются гораздо быстрее.
Для высоких, а также людей плотной комплекции важно учитывать и максимальный вес пользователя мультистанции. На фитнес-станции Adidas указан максимальный вес пользователя – 135 кг
Нужный элемент спортивной станции – тросы. Недорогие варианты грешат недостаточной прочностью тросов, что ведет к серьезным травмам
При покупке стоит обратить внимание на возможность смены нагрузок

Чертеж гиперэкстензии поможет сделать ее самостоятельно
Качественный тренажер позволит пользователю легко изменить вес, наклон и высоту сидений.
Функциональность устройства играет важную роль, так как домашний тренажер должен позволять выполнять упражнения на развитие разных групп мышц.

Самодельная силовая рама
Не стоит забывать о производителе. Популярные фирмы, такие как Adidas, гарантируют безопасность, надежность и долговечность. При покупке дешевого товара сомнительного производителя вы рискуете здоровьем.

































