Сауна в прицепе (кемпере), мобильная
Автор этой модели проживает в Канаде и из-за больших бюрократических трудностей решил сделать своими руками сауну внутри автомобильного прицепа (кемпера), на такую сауну уже документов не надо.
Комментарий автора: “Так что я прямо из парилки в озеро прыгаю”
Старый интерьер под снос. Сделал деревянный каркас. В качестве тепло / пароизолятора использовал Duro Foam изоляцию. Это что-то типа пенопласта с одной стороны обклеенного пластиковой плёнкой, а с другой – фольгой. Отделка белый и красный cedar (туя). Дерево лёгкое, без смолы с приятным запахом, не обжигает при больших температурах. Вентиляция: оставил одну решётку рядом с дверью. Печка – Harvia M3. Одна закладка дров (4-5 полешек) и 30-40 минут до полного прогрева парилки. Затем докладываю по полешку для поддержания огня и температуры. Время разогрева и температура сильно зависит от дров (плотное или мягкое дерево).
Выбор материалов для внутренней отделки бани
При выборе строительных материалов важно, чтобы они соответствовали таким требованиям:
- Устойчивость к большим температурам и их резким перепадам.
- Влагоустойчивость.
- Безопасность – у человека не должно быть аллергической реакции или ожогов при контакте с материалом.
- Экологическая безопасность – отсутствие токсических веществ.
- Гигиеничность – материал должен быть простым в обслуживании и уборке.
- Длительный срок службы.
- Высокая прочность и надежность.
- Привлекательный внешний вид.
Отделка парилки
Лучший материал, для облицовки парилки – это дерево, при этом лучше отдать предпочтение лиственным породам. Все дело в том, что эти сорта древесины не раскаляются, об них не обожжешься, выделение смол отсутствует, а при проветривании материал быстро высыхает, за счет чего образование грибка невозможно.
Виды древесины для отделки парилки:
- Осина – классический вариант для северных регионов России, так как материал имеет невысокую стоимость, из-за высокой прочности его сложно расколоть, помимо этого древесина имеет бактерицидные свойства.
- Липа – привлекательный внешне материал, имеющий устойчивый цвет и низкую теплоемкость. За счет этого дерево быстро набирает температуру и безопасно для касания. Также липа создает приятную атмосферу за счет особенного аромата и имеет небольшую цену.
- Абаш – материал, который только становится популярным, так как это древесина африканских тропиков и у нас о ней еще недостаточно знают. Лучше всего изготавливать из абаша полки, устойчивые к паре, высоким температурам, так как они почти не нагреваются.
- Ольха – привлекательный внешне и тактильно древесный материал, устойчивый к условиям парилки. Простой в обслуживании и уборке, имеет невысокую стоимость.
Нужно помнить о том, что дерево ни в коем случае нельзя красить или покрывать лаком, так как под воздействием высоких температур покрытие будет выделять вредные химические вещества и запахи. При отделке гвозди и саморезы нужно тщательно скрывать, так как они нагреваются и могут вызвать ожоги. Также специалисты рекомендуют набивать вагонку вертикально, ведь вода так гораздо быстрее стекает.
Защитить стык между стенами и полом помогут водонепроницаемые плинтуса. Для отделки пола лучше всего использовать лиственницу или кафель – последний вариант более предпочтителен, так как он устойчив к грибку и легко моется. В случае, если кафель показался холодным, на него укладывают деревянную решетку, которую легко убрать при необходимости.
Отделка предбанника и мойки
Для облицовки мойки дерево лучше не использовать, предпочтение отдают кафелю, так как в душевой постоянный контакт с водой. Кафельная плитка не гниет, за ней легко ухаживать, а для привлекательного внешнего вида можно выбрать специальные стильные плитки с имитацией натурального дерева.
Что касается предбанника, то это теплое и уютное место, но высоких температур здесь не бывает, поэтому позволено использовать хвойные породы дерева с приятным и полезным ароматом.
Среди популярных пород дерева для отделки предбанника выделяют:
- Сосна – привлекательный и прочный материал, имеющий длительный срок службы и наибольшую популярность. Во время эксплуатации древесина может изменить оттенок, став немного краснее. Также популярна скандинавская сосна, которая имеет розовый оттенок и годовые кольца, создающие декоративный рисунок на стенах.
- Ель – однородная структура, при сушке остается цельной и не трескается. Цветовая гамма – чуть светлее сосны.
- Пихта – дерево, которое по своим свойствам аналогично ели, но при этом практически не выделяет смолы.
Это интересно: Из чего строить баню, из какого материала лучше всего делать, как правильно начать, какую породу дерева выбрать, постройка на даче из древесины
В каком стиле оформить?
Многим кажется, что дерево — это только деревенский русский стиль и сделать деревянную баню современной невозможно. Но в зависимости от вида, древесина выглядит по-разному: поэтому использовать ее можно в разных стилевых направлениях.
Классический вариант — 100% деревянная отделка из вагонки или фальш-бруса. Деревенский — с использованием бревен и слэбов для декора. Более современный — доски разного цвета на стенах сочетаются с кафелем на полу.
Модный способ напоминает скандинавскую сауну: функциональный минимализм заключается в ограниченном использовании дерева и аккуратном сочетании его с другими фактурами — камнем, мрамором
Особое внимание уделите освещению — вместо деревянных бра здесь скрытые ленты
Если же взять за основу грубые балки и дополнить интерьер, например, шкурой или рогами — обстановка получится «охотничьей», в стиле шале.
В ультрасовременных вариантах дерево вовсе заменяют на камень и плитку. Пространство дополняют стильными картинами, другими интересными деталями. Смотрится стильно, но использовать такое помещение лучше в качестве влажной сауны, чем горячей баньки.
Никогда не выходит из моды русский дизайн: если вы тяготеете к бревенчатым домам, кадушкам, большим печам, рушникам и другим элементам, воссоздайте их в своей бане. В такой традиционной отделке даже чай из самовара будет вкуснее, не говоря уже о SPA-процедурах.
На фото традиционный дизайн бани внутри
Проект двухэтажной деревянной бани с мансардой, балконом и террасой

Габаритные размеры здания 7 на 5 метров. Стены сруба деревянные, потолок тоже деревянный по бревнам. В качестве фундамента используется монолитная железобетонная плита. Крыша мансардного типа с накидом из листового металла.

Общая площадь санузла 47,78 кв.м, площадь террасы и балкона 11,16 кв.м.

Несмотря на то, что общая площадь постройки небольшая, благодаря грамотной планировке на первом этаже уместится не только классическая парилка, душевая и комната отдыха. Помимо них в общие габариты постройки вписываются кладовая и достаточно большой санузел. Следовательно, мансардный этаж полностью занят просторной спальней площадью 22,9 кв. Таким образом, баня эффектно превращается из места отдыха в достаточно комфортное жилище.
Двухэтажная баня
Двухэтажная баня строится только в том случае, если она будет использоваться как жилое помещение самими хозяевами или как гостевой дом. Реже двухэтажную баню строят исключительно для отдыха.
В целях экономии полноценный второй этаж часто заменяют чердаком. Этот тип здания полностью отвечает всем требованиям, которые предъявляются ко второму этажу.
Большинство дизайнов ванных комнат на чердаке предполагают размещение спален или комнат для гостей. В небольших домах это может быть общая комната, в больших корпусах на втором этаже также поместятся две спальни. В зависимости от выбранного варианта на этаже есть небольшая прихожая, к которой ведет лестница, или он может отсутствовать, если на верхнем этаже всего одна спальня.

Обустройство всех этажей двухэтажной бани 7х8
Если баня с мансардой строится исключительно для отдыха, развлечения для небольшого круга людей переносятся на второй этаж: здесь можно разместить комнату отдыха, комнату отдыха, бильярдный стол и кинотеатр.
Площадь первого этажа разделена на большую турецкую баню, ванную комнату, возможно, бассейн и комнату отдыха. Общая комната на первом этаже — это место со столом, скамейками или шезлонгами, а также небольшая кухня с чайником, микроволновой печью и холодильником. Все это позволяет комфортно расслабиться после турецкой бани и пообщаться с друзьями.
Баня 8 на 8
- достаточно места для интеграции подсобных помещений;
- необходимость зонирования локализованных объектов;
- возможность обустройства большой террасы;
- раздельное размещение парилки и мойки;
- 3-4 спальных места на чердаке;
- при желании можно устроить еще и компактный бассейн.
вот где вы действительно можете проявить себя! Проект ванной комнаты 8 на 8 с мансардой может вместить буквально все, что душе угодно — от удобной гардеробной и большого холла до просторной бильярдной наверху рядом со спальней. Квадратное основание здания позволяет использовать для бизнеса буквально каждый сантиметр свободного пространства. Можно даже устроить выход на балкон. Разве не приятно выйти на улицу и подышать свежим воздухом, наслаждаясь прекрасным отпуском?
Конечно, чтобы комфорт был не только на бумаге, но и на практике, имеет смысл позаботиться о надежной гидроизоляции основания пола. В этом случае вы значительно продлите срок эксплуатации используемых материалов и добьетесь практически идеальной безопасности в эксплуатации здания.
Обустройство санузлов с мансардой в случае использования формата 8х8 усложняется из-за большей вариативности расположения входов и интеграции дополнительных модулей, таких как сам балкон, но конечный результат удивляет. И это лучший вариант планировки участка 10 соток с домом, баней и гаражом. По сути, это гостевой дом с функцией сауны. Остается только посещать его почаще и наслаждаться идеальным отдыхом.
Материалы для отделки бани
В интерьере сауны рекомендуется использовать только натуральные материалы, ведь они наверняка нетоксичны при высокой влажности и температурных перепадах. Чаще всего используют дерево, чуть реже – камень и керамическую плитку. Подойдет стекло, кирпич и совсем небанальные, но очень полезные солевые блоки.
Стены
Древесина быстро прогревается, медленно отдает тепло и богата на естественные фитонциды. В «сухих» зонах можно использовать хвойную вагонку с ее природным антисептическим эффектом. Но не в самой парилке, потому что при нагревании хвоя выделяет липкие смолы.
Для парной обрати внимание на липу, березу, осину, дуб, бук и ясень – они не так чувствительны к высокой влажности. В оформлении душевой, бассейна или отдельных декоративных зон эффектно смотрится плиточная мозаика
Солевые блоки при нагревании выделяют полезные минералы.
Для отделки парной используется дерево без дополнительной обработки, чтобы оно сохраняло свои природные целебные свойства. Для «сухих» зон подойдут декоративные панели под бревно, блок-хаус, планкен и любые другие виды деревянной обшивки. Чтобы покрытие было более долговечным, его покрывают масляными или восковыми составами.
Пол
На пол обязательно выбирай коллекции с фактурным противоскользящим покрытием. Нельзя использовать линолеум и другие искусственные материалы. Древесные плиты тоже не подходят, потому что для бани они слишком пожароопасные, а более бюджетные еще и содержат формальдегиды.
Потолок
Для потолка тоже подойдет деревянная обшивка с пароизоляцией, а вот подвесные конструкции лучше вынести в предбанник и комнату отдыха. Потолочная вагонка красиво смотрится, эффектно выглядит, обеспечивает здоровый микроклимат и циркуляцию воздуха.
Освещение
Используй вмонтированные потолочные светильники – они самые безопасные и практичные. Для декора подойдут маленькие соляные лампы-ночники. А вот от торшеров и бра лучше отказаться, ведь сама парилка обычно небольшая и на счету каждый сантиметр.
Мебель
Для сауны и бани подходит мебель с мягкими, округлыми формами. Подойдут и Г-образные лавки, если они идут во всю стену, чтобы не было наружных углов. Это нужно в первую очередь для того, чтобы если вдруг кому-то станет нехорошо – не травмироваться дополнительно.
Комната отдыха
Гардеробная – первая комната, которую видит человек, когда входит в баню. Это самый просторный номер, который может удивить посетителя своей оригинальностью, часто в гардеробной есть окно. В отличие от парной и душа, создание дизайнерских лаунджей, могут быть расширены, что позволит порадовать гостей необычайным подходом.

Комната, где есть все необходимое
Это внутреннее помещение необходимо для отдыха, чтобы сделать комфортным перерыв между «сеансами пара». В зале часто размещают стол, чтобы было удобно выпить травяного чаю, помните, что горячие напитки в бане противопоказаны. В комнате лишние диваны, кресла или скамейки.

Стол для душевных чаепитий
Если в комнате ожидания повышенная влажность, лучше установить мебель из дерева. Тканые диваны и кресла со временем «подхватят» плесень и грибок.
Дизайн и нюансы комнаты для отдыха в бане зависят от предпочтений владельцев. Это своеобразное помещение, имеющее многофункциональное назначение. Нынешние бани часто имеют входной вестибюль, мини-кухню, туалет, бассейн.
Немаловажным элементом и неизменной составляющей комнаты отдыха в бане являются блюда
Стоит уделить внимание оригинальным чашкам и тарелкам с традиционными народными нотками в орнаменте. Для украшения стола в бане пригодиться народный любимец – красочный русский самовар

Бассейн для бань
Акценты отделки гардеробной в бане, ставят на древесину мягких пород, например, сосну или нордическую ель. Разнообразить древесные элементы можно камнем, кирпичом, плиткой или пластиком. Модернистские ноты в более редкой для наших мест стилистике, как восточная, английская, дополнит соответствующая мебель, зеркала, картины, люстры, ткани и прочие аксессуарные тонкости.

Банные принадлежности
Гостиная в бане может рассматриваться как гостевая спальня, если она оборудована полными кроватями и оборудована постельными принадлежностями, тапочками и халатами.

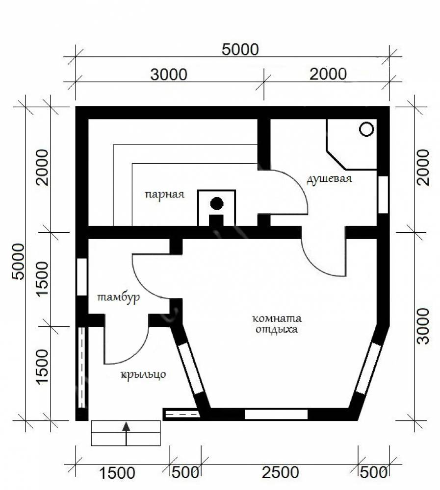
Планировка бани

Планировка бани

Планировка бани

Планировка бани

Планировка бани
Какие материалы используют для дизайна банного помещения
После возведения и утепления банного комплекса подходит очередь для внутренних отделочных мероприятий. По этому поводу существуют определенные правила, которые имеют существенные отличия по сравнению с работами в других строениях.
Безукоризненность внутреннего интерьера бани заключается не только в его комфортном обличии, но и в заботе о здоровье ее посетителей.
Уровень стилизации и практичность должны дополнять друг друга, а это во многом зависит от выбора материалов для отделки внутри баньки, которые должны обладать следующими свойствами:
- долговечностью;
- прочностью;
- экологической чистотой;
- способностью сохранять тепло;
- низкой теплопроводностью, что предотвращает ожоги;
- устойчивостью к температурным перепадам;
- стойкостью к высокой влажности.
Традиционным материалом, который вполне отвечает всем требованиям для работ внутри банного пространства, является дерево. К тому же, древесина эстетично выглядит, приятная на ощупь и выделяет нежный и полезный аромат, который используется в качестве ароматерапии и благотворно действует на весь организм.
Интерьер, где царствует такой природный материал, как дерево, прекрасен сам по себе. От него веет приятным теплом и спокойствием, что создает умиротворенную атмосферу. Обшивка банных комнат может производиться с помощью одного или нескольких пород дерева, в зависимости от назначения комнат.
Конечно же, интерьер современной баньки обустраивается и с помощью других материалов. Оцилиндрованное бревно, вагонка или блок-хаус прекрасно соседствуют с каменной, кирпичной или плиточной кладкой. Сочетание различных фактур по-особенному выделит каждую из комнат банного пространства.

Отделка и дизайн бани внутри фото

Интерьер бани внутри фото

Мини-сауна на участке фото

Дизайн бани внутри фото оформления
Парная в русской бане
Русская баня — это определенный температурно-влажностный режим, как мы уже говорили, к примеру, здесь. Для того, чтобы его добиться, существует не так уж много способов: нужна особая печка — либо кирпичная, либо металлическая в каменном или кирпичном обкладе, обязательно внутренняя каменка, где камни нагреваются так, чтобы дать легкий пар. Окно в парилке, если есть, должно быть маленьким, дверь — низкой, с высоким порогом. Под потолком бани будет собираться пар, который и есть основная фишка русской бани.
Стили
Как само собой разумеющееся, первым на ум приходит стиль этнический, с большим или меньшим уклоном в сказочность и фантезийность.
В самом деле, нет никакого устоявшегося «русского стиля» для бани — каждый волен интерпретировать его по-своему, имитируя древность сруба или подчеркивая нарядность светлым тоном дерева, красными и белыми акцентами в предметах. Кому-то нравятся резные украшения, придающие легкость и воздушность постройке и деталям интерьера, оформленными ими. Кто-то очарован богатырством и видит интерьер бани кряжистым, основательным, массивным.
Но все же можно сказать, что для аутентичности такая баня должна быть построена из цилиндрических бревен, печка в ней желательна кирпичная, в антураже хорошо использовать традиционные бадьи и прочую посуду из дерева. Хорошо смотрятся кованые элементы на дверях — навесы.
Мягкие диваны для комнаты отдыха в этом стиле, мягко говоря, не слишком уместны. А вот сработанная «под старину» мебель для бани в виде лавок, скамеек со спинками, на которые можно положить цветные, расписные подушки, валики — очень хороша.
Из текстиля для бани подойдет ситец, полотно, другие натуральные ткани из хлопка или льна, однотонные или с цветочным узором. Используйте их для занавесок, скатертей, салфеток, грелок для чайника, полотенец. Не забывайте о ярких ковриках или тканых дорожках.
Этнический дизайн парной в русской бане подразумевает исключительно деревянные стены, либо же обшитые вагонкой, с полками не в виде зашитых по низу лесенок, а в виде широких лежаков, обычно двухуровневых, чтобы парильщику было удобно парить лежащего, стоя на нижнем уровне. Очень простая парная, ничего лишнего. Светильники забраны деревянными же абажурами, ничто не напоминает о современности
Более современным будет что-то вроде гибрида русской бани с альпийским домиком. Это дает возможность осовременить интерьер, в который уже нормально впишутся и шкуры на полу, и мягкие диваны в комнате отдыха, и не зашитые в потолок балки. Представить будет легче, если вместо «альпийского» вообразить «охотничий домик».
Интерьер парной русской бани в этом случае можно тоже осовременить, использовав либо светодиодную подсветку, либо интересные абажуры из гималайской соли. Печка может быть и не кирпичная, а в каменном обкладе. (Другие, к сожалению, не дадут кондиций русской бани.)
Материалы
Основной материал в русской бане — это, как ни крути, а все-таки дерево. Зато в вашем распоряжении множество способов его «подачи» — лаки и краски, которые могут либо полностью скрыть, либо выявить красивые узоры древесины, а колера — сделать интерьер либо более таинственным за счет более темных оттенков, либо добавить света и оптимизма за счет светлых тонов.
Металл в русской бане, если и будет участвовать в дизайне, то только в виде каких-то элементов, имитирующих старину — те же дверные навесы, ободья на посуде, ковшики медные, кстати, и т.п.
Стекло… Конечно, какие-то предметы из стекла могут дополнить интерьер русской бани, но это только акценты, не более. И, разумеется, они должны не выбиваться из общего стиля.
Камень — вполне нормально впишется в интерьер бани. Его можно использовать в качестве отделки камина, например, или разделочной стенки, которая за печкой. Симпатично смотрятся стенки из вмурованных округлых камней.
Интерьер помещения
Нет более подходящего места, где можно было бы одновременно расслабиться после напряженной рабочей недели, напитаться гармонией, очистить свое тело, чем сауна или баня, что по духу ближе русскому духу.
Для многих посещение ее являются традицией, которую поддерживает ни одно поколение, и часто прививается в семьях с самого раннего детства, поэтому не удивительно желание наших соотечественников иметь собственную баню на заднем дворе.
Отличное место для релакса
Обстановка внутри должна дарить гармонию, спокойствие. Такая атмосфера достигается сочетанием всех частей интерьера. Не стоит думать, что тип русских бань – это, стандартная парилка с плитой, однотипными полками. Дизайнерский интерьер всегда отличается оригинальными деталями, декором, только реализуя индивидуальный проект, вы сможете получить стильное помещение для пара, отдыха.
Стильное помещение в восточном стиле своими руками
Качество, продуманная отделка и сопутствующие аксессуары – три кита внутреннего содержания, которые никогда не доставят вам неудобства. Для получения информации о том, как оборудовать интерьер, расскажу вам сегодня. Эти идеи могут быть использованы как дома, для собственных нужд, так для бизнеса.
Продуманная отделка – залог успеха
Подарок своими руками? Какой Легко и Быстро можно сделать? 12 прекрасных Вариантов на все случаи жизни
Как правильно стилизовать баню
Для парилок в русском стиле всегда характерно использования особенных элементов интерьера: грубой природной древесины, кованых деталей и изделий ручной работы.
Мебель рекомендуется заказывать из качественного дерева, с резьбой и орнаментом. А цвет должен быть темноват, дабы сильнее погрузиться в атмосферу русской бани.
Не менее важным моментом считается наличие разных символических атрибутов бани: веников, кувшинов, старинных занавесок, выполненных в русском стиле.
Они создают дополнительный уют в помещении. Для создания настоящей бани в неповторимом стиле необходимо использовать древесину для отделки стен, а также деревянные и кованые элементы интерьера. Каждая деталь должна дополнять атмосферу русской парилки.
Интерьер помещения
Нет более подходящего места, где можно было бы одновременно расслабиться после напряженной рабочей недели, напитаться гармонией, очистить свое тело, чем сауна или баня, что по духу ближе русскому духу.
Для многих посещение ее являются традицией, которую поддерживает ни одно поколение, и часто прививается в семьях с самого раннего детства, поэтому не удивительно желание наших соотечественников иметь собственную баню на заднем дворе.

Отличное место для релакса
Обстановка внутри должна дарить гармонию, спокойствие. Такая атмосфера достигается сочетанием всех частей интерьера. Не стоит думать, что тип русских бань – это, стандартная парилка с плитой, однотипными полками. Дизайнерский интерьер всегда отличается оригинальными деталями, декором, только реализуя индивидуальный проект, вы сможете получить стильное помещение для пара, отдыха.

Стильное помещение в восточном стиле своими руками
Качество, продуманная отделка и сопутствующие аксессуары – три кита внутреннего содержания, которые никогда не доставят вам неудобства. Для получения информации о том, как оборудовать интерьер, расскажу вам сегодня. Эти идеи могут быть использованы как дома, для собственных нужд, так для бизнеса.

Продуманная отделка — залог успеха
Покрытие пола
Когда дело доходит до установки пола, вы должны учитывать, что температура там намного ниже, чем ближе к потолку. Она редко достигает 30−40 градусов по Цельсию. Пол в парной может быть даже земляным, бетонным или глиняным
Важно учитывать момент, чтобы пол имел быстрый «отток воды». Конечно, чтобы избежать различных видов тепловых ударов, рекомендуется покрыть ваш пол специальным ковриком, досками или специальной пробкой
Для отделки пола у печи можно брать обычные плитки, а в других местах доски.
Технологический процесс отделки пола довольно прост:
- кладут доски на бревна, предпочтительно плотнее друг к другу, крепят их винтами.
- кладут плитки на стяжку, а затем правильно выравнивают рабочую поверхность. Плитка укладывается на специально подобранную смесь. Все швы обрабатываются специальной влагостойкой композицией, которая не позволит воде попасть под облицовочный слой и способствовать образованию плесени.
Обустройство парной
Паровая комната, безусловно, важнейшее из помещений, а в русской, парилка вообще является основной. Чаще всего он состоит из сгоревшего красного кирпича, но вы можете использовать иные материалы, даже керамику. Повышенный температурный режим, влажность в помещении диктуют конкретные правила, чтобы безошибочно подобрать материал.
Декорируем и обустраиваем
Для парной подходят исключительно лиственные породы дерева, способные на протяжении многих лет сохранять свои качества (ольха, липа, осина). Полы делают как деревянные, так с применением плитки. При возможности, предпочтение стоит отдать плитки, так как деревянный пол потихоньку будет ухудшаться.
Используем плитку на пол
Парная с окном внутри
На плите лежат естественные валуны, накапливающие, удерживающие тепло. Вода, заливающая горячие камни, провоцируют образование влажных паров, без которого вся суть парной будет утрачена. Площадь комнаты, ее высота должны быть небольшими, чтобы достигать прогрева быстро и равномерно. Рядом с печью следует установить контейнер для воды.
Еще одним атрибутом паровой комнаты являются полки. Устанавливают их в углах или около стен. При возможности, полки размещаются в несколько ярусов. Принято считать, что проще всего выдерживать горячий пар внизу, и не каждый может задержаться на верхнем ярусе. В конце концов, именно под потолком, скапливается основная масса горячего воздуха, и там очень тяжело дышать, но в этом главная польза процедуры.
Полки — атрибут каждой бани
Если размеры невелики, то сделать полки вы можете узкими, с закруглением. Строгие острые углы будут забирать полезную площадь. Лучшим материалом при подготовке полок для ванны предпочитают липу, лиственницу, что вполне оправданно с позиций практичного подхода – доски этих видов дерева устойчивы к влаге, гнили, поэтому изделия из них можно эксплуатировать больше десятка лет.
Лучший материал для полок — липа
Наиболее доступный вид древесины – сосна, которая, увы, совсем не годится для обустройства стеллажей, ее нельзя применять в парной, так как при нагревании она выделяет смолу, способную загореться, вызвать ожог.
Особенности внутреннего оформления интерьера
Условия эксплуатации внутренних помещений бани различны, поэтому требуют грамотного подхода к выбору декоративных материалов и стиля оформления. Интерьер бани должен соответствовать требованиям безопасности, функциональности и комфорта. Поэтому для внутренней отделки и декора помещений используются только качественные, долговечные и практичные материалы, устойчивые к температурным изменениям и повышенной влажности.
Дизайн бани предусматривает разработку детального проекта с указанием всех функциональных помещений. Это необходимо для грамотной планировки каждой комнаты – парной, моечной, предбанника, зоны для отдыха.
Чтобы правильно спланировать интерьер бани внутри, рекомендуется учитывать следующие правила:
- Для внутренней отделки поверхностей подойдут: деревянная вагонка, кафельная плитка, брус, блок-хаус, лоза, искусственный и натуральный камень, кирпич. Все материалы должны отличаться практичностью, долговечностью, экологичностью, низкой теплопроводностью, стойкостью к негативному воздействию влаги и пара.
- Чтобы обеспечить максимальный комфорт пребывания в бане, стеновые и потолочные поверхности оформляются в мягких теплых тонах.
- Внутри бани не должно быть острых предметов и углов, скользких поверхностей, чтобы предотвратить получение травм.
- Для внутреннего оформления бани не рекомендуется использовать элементы из пластика и металла. При воздействии высоких температур подобные поверхности создают опасность для человеческого здоровья.
- Любая баня и сауна предусматривают использование традиционных банных аксессуаров и принадлежностей – веников, шапок, ведер, ушатов и прочего. Поэтому интерьер помещений проектируется так, чтобы все принадлежности имели удобное расположение.




















![Дизайн парилки: оформление интерьера [100 фото], варианты](https://loftecomarket.ru/wp-content/uploads/d/7/e/d7e89f27decb795e1ab2ae3ba7b4dfc9.jpeg)















