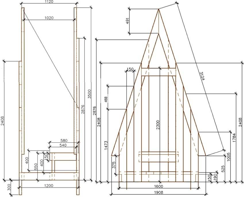
Чертеж туалета «Теремок»
Этот туалет имеет вид ромба. По сравнению с «Шалашом» строится он дольше, но и вид имеет более декоративный. При соответствующем оформлении он ничуть не испортит пейзаж.
Чертеж туалета «Теремок» с размерами
Ромбовидный домик для туалета на дачном участке смотрится неплохо. Снаружи оббить каркас можно распиленным пополам кругляком небольшого диаметра, вагонкой большой толщины, блок-хаусом, обычной доской. Если используете доску, прибивайте ее не встык, а накладывая на пару сантиметров на нижнюю, по типу еловой шишки. Можно, конечно, и встык, но внешний вид будет уже не тот…
Второй вариант: дачный туалет «Теремок» сделан со скошенными боковыми стенками.
Дачный туалет «Теремок» — второй проект с размерами
Основная загвоздка в любом небольшой деревянном туалете — хорошо закрепить двери. Дверная коробка — самая нагруженная часть, особенно с той стороны, где крепятся двери. Для скрепления стоек двери с брусьями каркаса используйте шпильки — так крепление будет надежным.
Фото-иллюстрации: строит туалет на даче своими руками. Чертежи представлены выше
Из этой несложной, в общем, конструкции можно сделать уборную в любом стиле. Например, в голландском. Отделка простая — светлый пластик, поверх которого набиты характерные балки, прокрашенные морилкой
Обратите внимание, на стеклянные вставки и на то, что крыша этого экземпляра сделана из поликарбоната. Если поликарбонат многослойный, жарко быть не должно)))
Дачный уличный туалет в виде голландского домика
Можно даже туалет «Теремок» превратить в царскую карету. Это не шутка…подтверждение на фото. Всего-то надо изменить форму и добавить несколько элементов декора, характерных для карет. Вот и получите туалет в виде кареты.
Уличный туалет-карета
Вот несколько фото процесса изготовления. В оригинале установлен биотуалет, потому постройка несложная: нет необходимости думать о яме и связанных с ней нюансах…но приспособить такую кабинку можно к любому типу…
Каркас характерной формы
Обратите внимание, форма достигнута благодаря установленным под углом доскам, а плавно сужающийся низ — подрезанными соответствующим образом опорам. На подиуме устанавливают биотуалет
На подиуме устанавливают биотуалет
Короткими досками зашивают пол, затем начинают обшивку снаружи. Вверху карета имеет тоже плавный изгиб — вырезаете из коротких досок соответствующие направляющие, прибиваете их к уже имеющимся боковым стойкам и можно начинать наружную обшивку стен.
Обшивка стен
Внутри также обшивают вагонкой. Снаружи туалет-карета выбелен, изнутри древесина имеет естественный цвет. После остается декорирование и добавление характерных деталей — вензеля, раскрашенные золотом, фонари, «золотые» цепочки, колеса.
Покраска и декорирование
«Царские» занавески и цветы. Поставлен даже рукомойник и небольшая раковина.
Вид изнутри на окна
После всех усилий имеем самый необычный в округе туалет. Мало кто может таким похвастаться…
Еще и чемоданы в багажнике…
Виды туалетов
Простота конструкции позволяет обустроить туалет на даче своими руками чертежи, и типоразмеры которого, можно изучить в каталогах фирм или рассчитать самому. Древесина самый популярный и доступный материал, простой в обработке и не требующий специального инструмента для постройки. Сама конструкция состоит из каркаса, обшитого доской и накрытого кровельным материалом. Построить дачный туалет своими руками просто, для этого не нужно производить сложных расчетов, достаточно знать стандартные размеры, изучить инструкцию по сооружению, подготовить материал и инструмент и начать отстраивать санузел. Схема и проект деревянного туалета для дачи Готовый собранный туалет из дерева на даче Простая конструкция дачного туалета Стоит отметить, что соорудить домик это половина дела, вторая половина заключается в создании специального резервуара для утилизации отходов. Есть несколько категорий туалетов, которые различаются по принципу переработки отходов.
Люфт-клозет
В этом виде туалетов устанавливается только нижняя часть унитаза, с технологическим уклоном пола в сторону утилизационного резервуара. Благодаря ему остатки стекают в обустроенную выгребную яму самостоятельно. Сама емкость для отходов обустраивается позади кабинки, и опорожняется по мере заполнения. Схематическое устройство люфт клозета Чертеж люфт клозета для дачи или дома Эта конструкция хороша тем, что ее можно установить в помещении, создав теплый санузел, а накопитель отходов выкопать вне дома. Для этого прикрепить к унитазу полипропиленовую трубу диаметром 100-150 мм.
В данной ситуации не нужно монтировать дорогостоящую полноценную коммуникацию. Названия элементов люфт клозета
Важно! При обустройстве дачного люфт-клозета с выносом ямы за пределы дома, никаких посторонних запахов в санузле не будет. Стоит ответственно отнестись к обустройству резервуара для остатков, его качественно утепляют, накрывают герметизированной крышкой и грамотной системой вентиляции. Процесс постройки люфт клозета на даче Минусом подобного туалета является то, что при его обустройстве придется нарушить целостность стены
Процесс постройки люфт клозета на даче Минусом подобного туалета является то, что при его обустройстве придется нарушить целостность стены.
Пудр-клозет
Самая простая конструкция и проект туалетов для дачного участка. Для ее сооружения достаточно выкопать яму, которая будет служить накопителем отходов, над которой устанавливается деревянный домик. Для предотвращения появления запаха, отходы нужно пересыпать после похода в туалет. В качестве пудры применяют опилки, торф. Чертеж с размерами устройства пудр клозета Проект пудр клозета на даче Построить туалет на даче своими руками чертежи составлять не обязательно, можно сделать простой схематический набросок, чтобы понимать представление об этапах работы. При покупке подобной конструкции в магазине, емкость с био-присыпкой входит в комплект к санузлу. Пользоваться ей просто, достаточно поставить ведро с опилками или торфом и пользоваться совочком для пудры. Процесс постройки пудр туалета на дачном участке Плюсом этих туалетов является использование отходов в качестве удобрений. При заполнении ямы, конструкцию переносят, и засыпают землей резервуар, оставляя до получения перегноя. Минус почва будет загрязняться жидкими сточными водами, что не совсем полезно. Если донные воды пролегают близко к поверхности, то такую постройку на участке устанавливать не рекомендуется.
Биотуалет
Это туалет, теремок из дерева, снабжается накопителем заводского производства, в котором отходы перерабатываются бактериями без доступа воздуха. Чертеж с размерами для установки биотуалета на даче Бактерии засыпаются в накопитель вместе с препаратом биологического происхождения. Он покупается отдельно в специализированном магазине. Отходы быстро перерабатываются, очищать контейнер часто не придется, отходы, возможно, сразу применить как удобрение для участка.
Материалы для изготовления
Современный выбор строительных материалов дает волю фантазии. Выше мы разобрали проект деревянного сооружения. Однако этим все не ограничивается. Туалетные домики могут быть построены из кирпича, профнастила, различного типа блоков, OSB или фанерных плит и так далее.
Выбор материалов будет зависеть от ваших финансовых возможностей и срока эксплуатации сооружения. Предлагаем взглянуть на характеристики основных вариантов.
Кирпичный туалет
Достоинств много. Стоек к атмосферным воздействиям. Отлично удерживает тепло и прохладу. Выполнен из экологически чистого материала. Можно построить любую форму.

Туалет из дерева
Является классическим вариантом. Минимальное время на возведение. Небольшие трудозатраты на возведение в сравнении с предыдущим вариантом. Привлекательный внешний вид. Основа – экологически чистый материал.

Металлический туалет
Вариант для экономии времени и средств. Для возведения подойдет любой листовой металл, например, профнастил. Основа – каркас из профильной трубы. Изготовить по силам каждому. Наиболее экономичный вариант из всех
Однако следует уделять внимание внутренней обшивке с утеплением для зимы и удобству стульчака

Как можно увидеть вариантов много. Для возведения можно выбрать наиболее привлекательные материалы и тип сооружения. У каждого из них, бесспорно, будут свои плюсы и минусы. Все это стоит продумать. Но изготовить туалет на даче по силам каждому.
Советуем почитать:
- Технология создания деревянного туалета;
- Как сделать выгребную яму своими руками;
- Изготовление стульчака для деревянного туалета
Туалет с выгребной ямой
Как сделать уличный туалет своими руками так, чтобы он соответствовал требованиям санитарных норм? Для из соблюдения необходимо размещать туалет:
- не ближе 12 м от жилых построек;
- в 25 м и более от водоемов;
- не ближе 4 м от хозяйственных построек;
- не ближе 1 м до границы соседнего участка.
Кроме того между деревьями и туалетом стоит делать расстояние не менее 4 м, а между ним и кустарниками — не менее 1 м.

При расположении грунтовых вод на глубине менее 2,5 м от поверхности выгребная яма обязательно должна быть изолированной. Для этого обычно используют резервуар из пластика большого объема.

Если грунтовые воды расположены глубже, выгребная яма может быть герметичной или иметь фильтрующее дно.

Глубина ямы должна быть не более 3 м.

После того, как яма вырыта, следует укрепить ее стены. Для этого можно использовать кирпич, бетон или железобетонные кольца.

Комбинированный душ-туалет
Вторая по необходимости постройка на даче — душ. А если так, то зачем строить два отдельных сооружения, если их можно построить под одной крышей. Несколько чертежей дачных туалетов с душем для самостоятельной постройки опубликованы ниже.

Вариант комбинированного туалета для дачи душем
Второй проект туалета и душа под одной крышей.

Внешний вид и чертеж туалета и душа для дачи в одном строении (чтобы увеличить размеры картинки, щелкните по ней левой клавишей мышки)

Вид и размеры туалет+душ спереди и сбоку
Как вы догадались, строение просто увеличивают в два раза в ширину. Если захотите, сможете создать свой проект, под свои желания и потребности. Чертеж хозблока с туалетом будет точно таким. Возможно, вам нужно будет сделать одно из помещений чуть больше. Просто предусматриваете это при планировке и изготовлении опор под постройку.
Оригинальные туалеты для дачи
За функциональность туалета отвечает накопительный резервуар, а оригинальность конструкции придает кабинка. Ее сооружают из профнастила, оцинковки, кирпича, пеноблоков. Самым популярным материалом считается древесина.
По форме кабинку делают традиционно прямоугольной с плоской или двухскатной крышей. Для пудр-клозета предусматривают дополнительное место под ящик с торфом.
Туалет обычно располагают в укромном месте дачи, но к возведению кабинки можно подойти творчески. Конструкцию изготавливают в форме домика, шалаша, сказочного теремка и даже королевской кареты.
Комбинированный душ-туалет
Вторая по необходимости постройка на даче — душ. А если так, то зачем строить два отдельных сооружения, если их можно построить под одной крышей. Несколько чертежей дачных туалетов с душем для самостоятельной постройки опубликованы ниже.

Вариант комбинированного туалета для дачи душем (чтобы увеличить размеры картинки, щелкните по ней левой клавишей мышки)
Второй проект туалета и душа под одной крышей.

Внешний вид и чертеж туалета и душа для дачи в одном строении (чтобы увеличить размеры картинки, щелкните по ней левой клавишей мышки)

Вид и размеры туалет+душ спереди и сбоку (чтобы увеличить размеры картинки, щелкните по ней левой клавишей мышки)
Как вы догадались, строение просто увеличивают в два раза в ширину. Если захотите, сможете создать свой проект, под свои желания и потребности. Чертеж хозблока с туалетом будет точно таким. Возможно, вам нужно будет сделать одно из помещений чуть больше. Просто предусматриваете это при планировке и изготовлении опор под постройку.
Теплый дачный туалет на зиму
Зимой бежать посреди ночи в туалет, пусть даже и построенный с любовью своими руками – удовольствие не для всех. Поэтому многие люди мечтают о теплом туалете.
Тут сразу следует оговориться – теплым он будет лишь условно. В лучшем случае, находясь в постройке, вы будете защищены от снега и ветра. Тепло здесь не будет. Если только вы не собираетесь подключить туалет к системе отопления дома, установить в нем электрический обогреватель или же поставить буржуйку, которую станете постоянно подкармливать топливом. Так что, постараемся обойтись минимумом удобств.
Главное утеплить туалет. Сделать это можно как в деревянной, так и в кирпичной постройке. Подойдут разные теплоизоляционные материалы, но проще всего использовать простой пенопласт. Он имеет множество достоинств:
- низкая стоимость,
- малый вес,
- легкость обработки и подгонки,
- высокая теплоизоляция.
Туалет обшивается пенопластом изнутри. Для этого материал нарезается на куски подходящей формы и размера – проще всего сделать это при помощи простой ножовки по дереву. При необходимости края можно обработать крупной наждачной бумагой или наждаком. Они должны быть ровными, чтобы при подгонке не оставалось щелей. К стенам пенопласт крепится при помощи саморезов с шайбами – последние снизят давление на хрупкий утеплитель. Кстати, сильно затягивать их вообще не нужно – благодаря легкости материала всего пара шурупов легко смогут удержать лист площадью в несколько квадратных метров. Утеплять нужно стены, дверь и особенно крышу – тепло поднимается вверх и на крышу приходится львиная доля теплопотерь.
Когда обшивка своими руками завершена, для большей привлекательности туалет обшивается изнутри ещё и фанерой. Она скрывает пенопласт и снижает риск его случайного повреждения. В качестве крепежа используются всё те же шурупы.
Если же вы хотите теплый туалет на дачу, то и на этот случай есть определенные идеи. Например, хорошим выбором станет установка инфракрасных ламп. Они потребляют сравнительно немного энергии и при этом способны быстро повысить температуру в небольшой постройке до более-менее комфортной.
Видео
Теплая уборная
Пользоваться туалетом со стенкой в одну доску летом вполне комфортно. Но не все дачи посещаются только в теплое время года. Для осенне-весеннего периода необходимо хоть какое-то утепление, которое перекроет сквозняки.
В этом случае конструкция туалета ничем не отличается. Только размеры увеличите на 5-10 см больше: обшивка будет двойная — снаружи и изнутри, а между обшивкой уложен утеплитель. Утеплить нужно будет и двери — двойные слишком тяжелые для такой постройки, но изнутри их можно оббить куском линолеума, дермантином и другим хорошо моющимся материалом.
О строительстве туалета своими руками (с фото-отчетом можно прочесть тут).
Виды дачных туалетов
Рассмотрим три типа: люфт – пудр клозеты, биотуалеты.
Люфт-клозет
Получил своё название от вентиляционного канала, совмещённого с дымоходом. За счёт его нагрева образуется тяга. Естественно, никаких запахов. Летом для создания тяги в нижний отдел дымохода встраивают простейший нагреватель типа лампы накаливания на 15 – 20 Вт.
Яма периодически откачивается.
Должен иметь одну наружную стену, в ней устраивается форточка.
Рис. 3. 1 – дымоход; 2 – люфт-канал; 3 – утеплённая крышка; 4 – стандартный канализационный люк; 5 – вентиляционная труба; 6 – глиняный замок; 7 – кирпичные стены.
Рис. 4. Внутридомовой люфт-клозет с индивидуальной вентиляцией
Довольно сложная, но безупречная в санитарном отношении конструкция. Расчёт объёма такой: при очистке раз в год 1 куб на человека: при четырёх – 0,25 куба. При любых расчётах глубина не менее 1 метра: уровень содержимого не должен быть менее 50 см от земли.
Яма герметична: по глиняному замку заливается бетонное дно, стены также бетонные или обкладываются кирпичом. Внутренние поверхности изолируют битумом. Вентиляционное отверстие всегда должно быть выше обреза трубы, по которой поступают отходы.
Конечно, такая схема не совсем вписывается в понятие дачный домик, но этот тип туалета не вызовет претензий ни у соседей, ни у органов местной власти
Это очень важно!. Такая же конструкция уличного типа
Такая же конструкция уличного типа.
Рис. 5; 1 – вентканал; 2 – герметичная крышка; 3 – глиняный замок; 4 – герметичная оболочка ямы; 5 – содержимое; 6 – отбойная доска; 7 – вентиляционное окно.
Конструкций стульчака достаточно много, выпускается именно для таких туалетов и санфаянс.
Рис. 6. Унитаз для люфт-клозетов.
Диаметр внутреннего отверстия 300 мм, крышка в комплект не входит.
Очистка
Со временем в яме образуется ил, который не даёт жидкости дренировать. В результате яма быстро заполняется.
Для того чтобы его восстановить фильтрацию, народные умельцы советуют перемешать содержимое химическими способами: негашёной известью, карбидом кальция, дрожжами. Положительный эффект может наблюдаться в 1 – 2 случаях из 10. В остальных – крупные неприятности.
Сегодня есть широчайший ассортимент биологических средств и стимуляторов для выгребных ям, которые без шума и пыли ликвидируют ил, превратят содержимое в компост, пригодный для выращивания даже овощных культур.
Конечно, для этого нужно время: не менее 2 – 3 лет в зависимости от среднегодовой температуры, точного соблюдения инструкции производителя, особенно по срокам внесения. От запаха можно избавиться в течение нескольких недель.
Если это не имеет практического смысла или противоречит культурным традициям, вызов спецавтомобиля решит все проблемы. Когда такие визиты покажутся затратными, время подумать о другом варианте, который рассмотрим ниже.
Санитарные нормы
Возводить дачный туалет своими руками с выгребной ямой придётся с учётом того, что при среднесуточном стоке менее 1 кубометра она может иметь открытое дно, свыше – только закрытое.
Освобождается она от содержимого не реже 2 раз в год. Сигнал для этого – уровень содержимого менее 35 см от уровня земли.
Дезинфекция выгребных ям уличных уборных проводится смесью такого состава.
- Известь хлорная 10%.
- Гипохлорид натрия 5%.
- Нафтализол 10%.
- Креолин 5%
- Метасиликат натрия 10%.
Чистая сухая хлорка запрещена: выделяет смертельно опасный хлор при увлажнении.
Пудр-клозет
Здесь яму заменяет ёмкость небольшого размера. Имеются вёдра с герметичной крышкой, которую снимают перед процедурой. По её окончанию содержимое «припудривают» органическим материалом. Запах при открытой крышке есть, особенно в жаркое время. Использование биопрепаратов его существенно снижает.
Рис. 7. 1 – вентиляционное окошко; 2 – крышка; 3 – стульчак; 4 – ёмкость; 5 – деревянный каркас; 6 – основа каркаса; 7 – гравийно-щебневая засыпка; 8 –дверь.
Преимущества такой конструкции в том, что уличный туалет для неё не обязателен. Это может быть уголок хозяйственной постройки, подвала. Наличие вентиляционного окошка или трубы обязательно.
Пудр-клозет легко трансформируется в компостный и обратно. Рациональное решение – комбинация его с душем или хозяйственным помещением.
Рис. 8. Совмещённое строение.
Современные модели представляет Елена Малышева.
Электрический туалет оставляет после себя горстку золы, но использовать её в качестве удобрений нельзя. Это относится и к химическим устройствам.
Как сделать утепление
Выбор подходящего варианта утепления должен быть определен заранее. Многое зависит от того, внутренние или внешние части конструкции вы планируете утеплять.
Планируя работы над внутренней частью, помните, что пространство ограничено. Выбирайте материал, который при монтаже не займет много места
Важно, чтобы он надежно защищал от мороза, холода и ветра. В пользу утепления изнутри говорит еще то, что такой вид укладки материала потребует меньших затрат средств. Тем не менее, каждый случай индивидуален
Тем не менее, каждый случай индивидуален.
Выбирая внешнее утепление, будьте готовы к более кропотливой работе. Из-за ограниченного пространства покупайте теплоизоляционные материалы, ширина которых не превышает 75 мм. Идеальным вариантом станет монтаж листов минеральной ваты. Для ее крепления купите металлические рейки прямоугольной формы.
Из-за ограниченного пространства покупайте теплоизоляционные материалы, ширина которых не превышает 75 мм.
- Для устройства гидроизоляции понадобится пленка, а для обшивки — гипсокартон. Лучше всего остановить свой выбор на влагостойких листах.
- Приобретите саморезы и профили. Они потребуются для того, чтобы сделать качественное крепление.
- Для замазки стыков между листами купите шпатлевку.
Чтобы выбрать нужное количество материала необходимо учесть размеры строения. Монтаж утеплителя состоит из следующих этапов:
- Возьмите деревянные рейки. Сделайте обрешетку, набив ее на стены с шагом 50 см.
- Положите листы утеплителя. Зафиксируйте их саморезами, прикрепив к обрешетке. Материал следует разместить на стенах, не забывайте про потолок.
- Положите на утеплитель пленку, она требуется для защиты минеральной ваты от влаги. Зафиксируйте пленку скотчем.
- Обшейте утеплитель влагостойким гипсокартоном. Они крепятся на саморезы, а устанавливаются на металлический профиль.
- Места соединения листов заделайте шпатлевкой.
Если хотите, на гипсокартон можно наклеить обои или плитку.
Построить туалет можно, наняв строительную бригаду, также вы можете купить готовый.
- Стоимость «Шалаша» или «Скворечника» начинается от 6500 рублей.
- Хозблок с туалетом – от 12 до 18 тыс. руб.
- Возможна доставка, ее стоимость зависит от места назначения и региона.
Как выбрать автономную канализацию в частном доме, разбираемся здесь.
Все о подключении к городской водопроводной сети в частном доме: документация, проведение работ, цены, образцы документов.
Дачный туалет теремок
Туалет на даче – вещь незаменимая, каждому хозяину загородного участка приходится сталкиваться со строительством этого важного объекта. Обычно постройки эти выходят невзрачными, поэтому их стараются спрятать в глубине сада или на заднем дворе участка
Но можно сделать дачный туалет украшением двора – выбрать необычную конструкцию тапа теремка. Туалет-теремок напоминает сказочный домик, его основным элементом является сильно покатая крыша, скаты которой, иногда, доходят до самой земли. Такая конструкция выглядит эффектно, туалет уже не нужно прятать, напротив, он вполне может стать предметом зависти для соседей.
Эта статья будет о том, как построить дачный туалет теремок своими руками, здесь же можно найти чертежи и размеры конструкции данного типа.
Как правильно построить деревянный туалет на даче своими руками
Самым простым, классическим типом деревянного туалета для дачи, сделанного своими руками, является туалетная кабинка «Скворечник». Она представляет собой невысокое строение со скошенной односкатной крышей, дверью и вентиляционным окошком. Такая постройка проста в исполнении и довольно экономична. Кроме этого, такой уличный клозет при необходимости можно легко перенести на новое место.
Технические характеристики традиционного уличного туалета «Скворечник»:
- передняя стенка (высота) – 2,3 м;
- задняя стенка (высота) – 2,0 м;
- ширина передней и задней стенок – от 1,0 м;
- основание кабинки – 1,0 на 1,0 м (стандартно, но можно больше);
- величина угла ската кровли – 25-35 градусов.
Для строительства деревянной кабинки «Скворечник» могут понадобиться следующие материалы:
- деревянный брус;
- обрезная доска;
- деревянная вагонка;
- ДСП, ОСП листы или фанера;
- дощатый щит;
- шифер (классический или пластиковый);
- рубероид;
- стальной металлопрофиль.
При постройке туалета на даче своими руками нужно соблюдать такие правила:
- Создавая чертеж будущей кабинки, необходимо учитывать размеры внутреннего помещения, чтобы пользоваться туалетом было удобно и безопасно.
- Высота туалетного домика должна быть не менее 2,0 м. Низкий дверной проем неудобен, так как перед входом внутрь каждый раз нужно будет обязательно наклониться.
- При постройке кабинки типа «Скворечник» передняя часть кровли выше задней. Это необходимо для того, чтобы сток дождевой или талой воды происходил за строением.
- Если электрическое освещение внутри туалетного домика не планируется, то нужно позаботиться о естественном освещении кабинки через небольшое окно в верхней части строения или в двери.
- Для вентиляции туалета следует предусмотреть открытое окошко или вытяжную трубу. Это важный момент, о котором не стоит забывать.
- Для того чтобы летом в туалетной кабинке не было слишком душно, ее лучше строить на самом тенистом участке.
- При выборе места для туалетного домика на даче следует избегать соседства с колодцами, скважинами, природными и искусственными водоемами.
Процесс постройки уличного туалета «Скворечник» с выгребной ямой:
- Для начала нужно выкопать яму объемом 2,0-2,5 м³. Яма должна выходить из периметра туалетной кабинки (см. чертеж «Скворечника» выше). Нижний уровень котлована лучше делать с небольшим уклоном в сторону выгреба. Для герметизации биологических отходов дно и стенки котлована выложить кирпичом, шлакоблоком, бетонным саркофагом.
- Из деревянного бруса (толщиной не менее 10,0 см) собрать основание под туалетную кабинку. Для этой цели можно использовать бетонные блоки, бордюр или шлакоблоки – это увеличит срок использования надстройки туалета. Часть ямы, предназначенной для осуществления выгреба, закрыть деревянным настилом (щитом). Его крышку нужно обработать битумом и накрыть рубероидом для защиты от проникновения влаги внутрь котлована.
- Вторая часть ямы предназначена для расположения над ней деревянного домика. Каркас кабинки «Скворечник» собрать по схеме.
- Затем его можно обшить обрезной доской, вагонкой, деревянными щитами или любым другим отделочным материалом. Внутри кабинки смонтировать стульчак с отверстием нужной формы и размера.
- Крышу туалета покрыть любым кровельным материалом, в передней части установить дверь, вырезать вентиляционное окошко. Готовую деревянную кабинку установить на фундамент с ямой и зафиксировать ее со всех сторон. Вплотную к задней стенке туалетного домика, в деревянном настиле, вырезать отверстие под пластиковую вентиляционную трубу (диаметр 10,0 см). Вставить ее в это отверстие и закрепить к стенке туалета хомутами. Нижний конец трубы заглубить на 20,0 см в яму, а верхний конец должен быть не менее 70,0 см от уровня настила (надеть защитный колпак).
После того как конструкция туалета будет смонтирована, все деревянные поверхности кабинки нужно обязательно обработать пропиткой, покрыть морилкой, лаком или масляной краской. Такая обработка замедлит процесс старения древесины и придаст постройке красивый эстетичный вид. Соблюдая особую технологию, дачный деревянный туалет можно обложить кафелем изнутри.
По такому же принципу на дачном участке можно построить и установить своими руками деревянные туалетные кабинки другой конструкции.
Выбираем материал для дачного туалета
Чаще всего на загородных участках устанавливают деревянные конструкции туалетов. Это объясняется простотой их строительства, доступностью и дешевизной материала. Однако даже обработанная антисептиками древесина со временем гниет и разрушается, поэтому такие туалеты весьма недолговечны. В случае если чертеж дачного туалета был выполнен дилетантом, то этот процесс может идти еще быстрее в случае неправильной конструкции основания пола или ошибок в обустройства кровли.
Наиболее долговечным считается кирпичный туалет, который довольно легко соорудить своими руками, чертежи при этом можно не искать
Важно правильно разметить основание, построить фундамент и соблюдать вертикальность стен. Только так можно надеяться на достаточную прочность сооружения.
Не менее надежным является и металлический дачный туалет, чертежи и размеры которого – не проблема в век информационных технологий. Вот только для его постройки понадобится сварочный аппарат и умение с ним обращаться. Несмотря на это такие конструкции весьма просты в изготовлении, поэтому их с успехом используют на многих дачах.
Строим из дерева по традициям
Несмотря на обилие материалов на строительном рынке, в том числе и инновационных, самым востребованным при возведении туалетов остаётся дерево.
Преимущества древесины:
- Экологичность. Когда доски отслужат своё, уборную можно разобрать и сжечь в печи.
- Декоративность. Даже самый незамысловатый деревянный туалет легко вписывается в дизайн любого дачного участка, подчёркивая его природную красоту.
- Гигиеничность. Древесина впитывает неприятные запахи, маскируя их.
- Долговечность. Если использовать специальные пропитки против бактерий, грибков и насекомых или краску, защищающую от губительного ультрафиолета, то можно существенно продлить срок службы материала.
- Невысокая стоимость.
Основной недостаток дерева — повышенная воспламеняемость, которую можно снизить путём обработки жаростойкими средствами.
Уборную простой конструкции можно построить за один день
Чертежи дачных туалетов
Чтобы построить хорошую уборную в саду, нужен подробный чертеж туалета для дачи с размерами. Есть много чертежей под разные виды нужников, так что не приходится ничего придумывать самостоятельно. Схема дачного туалета с указанными размерами сильно упрощает строительство и экономит много времени.
Скворечник
Чертеж туалета «Скворечник»
Туалет-скворечник – это самая популярная ввиду своей простоты конструкция. Чертеж туалета элементарен, модель действительно напоминает домик для птиц. Это прямоугольная вертикальная кабинка с односкатной крышей с небольшим уклоном к задней стене.
Чтобы построить скворечник, достаточно установить каркас и обшить его любым стройматериалом, а спереди установить простую дверь. Такой туалет полностью делают из дерева.
Избушка
Чертеж туалета «Избушка»
Избушка, или теремок – это ближайший родственник скворечника. Они очень похожи, но разница в том, что крыша у избушки двускатная. Нужно очень тщательно и точно строить туалет-теремок по размерам на чертеже, иначе есть риск, что крыша готового сооружения будет «перекошена» в одну сторону.
Этот нужник делают немного расширяющимся кверху. Строят его из деревянного бруса, обшивают тоже деревом. Если отделать сооружение «под сруб», то благодаря симпатичной форме оно будет выглядеть как настоящий теремок.
Шалаш
Чертеж туалета «Шалаш»
Отхожее место в виде шалаша очень легко построить. Это двускатная постройка, напоминающая по форме вигвам. Такой чертеж дачного туалета из дерева с размерами позволяет сэкономить стройматериалы и время, требуемое для возведения.
Делают шалаш из дерева, металла или даже шифера. Плюс такой постройки – в том, что она не похожа на туалет, и любопытные прохожие, заглядывая через забор, могут принять ее за хранилище садового инвентаря.
Домик
Чертеж туалета «Домик»
Туалет-домик похож на избушку, но, в отличие от нее, не расширяется кверху. Прямоугольную кабинку венчает простая двускатная крыша, благодаря которой туалет выглядит уютным.
Габариты туалета для дачи примерно одинаковы для всех моделей, и домик – не исключение. Строить его лучше всего из дерева, чтобы он выглядел эстетичнее, но и обшитый металлом домик тоже не сильно портит вид на дачный участок.
Правила размещения туалета на дачном участке
Туалет на дачном участке или на земельном участке в частно жилом секторе, нельзя делать близко от водозабора. От обычного колодца расстояние должно быть 50 м, а от скважины с обсадными трубами 30 м. если ваш участок находится в водоохраной зоне водохранилищ и рек, то там это расстояние увеличивается до 200 м. На самом деле, еще большее ограничение на расположение туалетов оказывают жилые постройки. Согласно санпин 42-128-4690-88 «Санитарные правила содержания территорий населенных мест» дворовые уборные должны быть удалены от жилых зданий, всевозможных детских учреждений, как то школы, детские сады и даже детские площадки.
Минимальное расстояние 20 м, но, расстояние до туалетов, даже если это дворовые уборные, от детских учреждений должно быть не более 100 м. Но есть некоторые послабления, для частных домостроений расстояние до уборной определяется самими домовладельцами и допускается уменьшение такого расстояния до 8-10 м. Только не нужно забывать про соседей. Они могут не согласиться, чтобы расстояние от вашей уборной до их дома было меньше 30 м. в этом случае, разбираться в конфликте будет комиссия местных советов. Как уж вы сможете договориться, это отдельный вопрос, но судебная практика показывает, что суд вполне может принять вашу сторону, но, все равно, минимальное расстояние до соседского дома не должно быть меньше 8 м. что, нужно отметить, не так уж и мало, если и дом соседа построен с соблюдением строительных норм и правил, он не может располагаться ближе 3 м от границы участков, то есть, ближе 5 м от забора для вашего туалета запретная зона.
Другие важные ограничения. Глубина выгребной ямы зависит от уровня грунтовых вод, но в любом случае, не должна быть более 3 м. если мы помним, то в деревне при заполнении ямы, просто копали новую. Понятно, что никто такие ямы не бетонировал. Сегодня выгребная яма должна быть водонепроницаемой, просто ямы правилами даже не предусмотрены. Правда, способ, которым достигается водонепроницаемость, не конкретизирован, поэтому, это может быть и металлический кессон, и бетонные кольца и прочее. Такую яму просто переносить не будешь, поэтому, в обязательном порядке предусмотрен выгреб с крышкой. То есть, предполагается, что яма будет регулярно очищаться.
В предыдущих статьях я уже рассматривала вопрос о для своего загородного дома и о том, как .Наличие воды хотя бы в пределах шаговой доступности и выбор способа утилизации отходов (в том числе и человеческой жизнедеятельности) — задачи, требующие подчас сложных инженерных решений. А первый этап в обеспечении этих потребностей, как и в любой строительной деятельности, — это проектирование. То есть составление проектной схемы, учитывающей не только требования пользователей, но и санитарные нормы и правила.


































