Технические характеристики установки
Промышленное пиролизное оборудование позволяет перерабатывать десятки тонн материала в сутки, но его минус — большие размеры.
Основные параметры агрегатов:
- производительность (кг/час или кубометры в день);
- масса установки (мобильные агрегаты весят 3-8 тонн, стационарные — больше 10 тонн);
- габаритные размеры;
- мощность;
- тип питания (требуемое топливо/параметры электросети);
- мобильность (требуется ли разборка для перевозки);
- этажность установки (количество уровней).
Иногда ]пиролизных установок указывает дополнительные параметры: окупаемость, объём реактора и т.д.
О пеллетной горелке
Пеллетная горелка – специальное обогревательное устройство, которое выделяет тепло за счёт сжигания пеллет или топливных гранул в котле. В некоторых случаях в подобных горелках используется ненужное сухое зерно.
Существуют ручные и автоматические горелки, в автоматических горелках топливо подаётся в бункер для сжигания с помощью специального шнека, а весь процесс контролируется датчиками, за счёт чего устройство нуждается в минимальном контроле со стороны пользователя. Пеллетные горелки нашли своё применение не только в быту, но и в промышленности. Они используются для отопления помещений, для подогрева воды и для удовлетворения ряда других нужд.
Пеллеты, или топливные гранулы, — специальное твёрдое топливо, которое получается из отходов древесины или сельскохозяйственного производства путём прессования и гранулирования под воздействием высоких температур.

В странах, в которых сельское хозяйство и деревообрабатывающая промышленность занимают лидирующие позиции, себестоимость пеллетного топлива оказывается гораздо ниже, чем каменного угля. Исключения составляют только те регионы, в непосредственной близости от которых расположены угледобывающие предприятия.
При сжигании пеллет не выделяются опасные испарения, как это происходит при сжигании жидкого топлива.
Как сделать пиролизный котёл своими руками
Технологический процесс изготовления котла пиролизного принципа действия включает выполнение слесарных и сварочных работ.
Необходимые материалы и инструмент
Для изготовления качественного агрегата необходим опыт в работе со следующими инструментами:
- аппарат электросварочный;
- дрель электрическая;
- угловая шлифмашина;
- набор слесарных инструментов — угольник, уровень.
Потребуются материалы и комплектующие:
- металл:
- листовой, толщина 4 мм, 7,5 м²;
- труба — 8 м (диаметр 57 мм, толщина стенки 3,5 мм);
- полоса сталь (толщина 4 мм, ширина 20 мм) — 7,5 мп;
- полоса сталь (толщина 4 мм, ширина 30 мм) — 1,5 мп;
- полоса сталь (толщина 5 мм, ширина 80 мм) — 1 мп;
- шамотный (огнеупорный) кирпич — 15 шт;
- профтруба 60×30 (толщина стенки 2 мм) — 1,5 мп;
- профтруба 80×40 (толщина стенки 2 мм) — 1 мп;
- круг отрезной d 230 — 10 шт.;
- круг шлифовальный d 125 — 5 шт.;
- электроды — 5 пачек;
- датчик температуры.

Температурный датчик — это механическое устройство контроля количества воздуха, проходящего в камеру сгорания.
Продуктивность работы котла зависит от функционирования дымоотводящей трубы. Для обеспечения хорошей тяги дымоотвод должен соответствовать требованиям качества:
- высота не меньше 5 метров;
- хорошее утепление;
- отсутствие резких изгибов;
- отвод конденсата;
- простой доступ для чистки.
Чертежи и схемы устройства
Пиролизный котёл без принудительной вентиляции имеет наиболее простую схему. Энергонезависимость конструкции удешевляет эксплуатацию агрегата.
Схема пиролизного котла с естественным дымоотводом имеет вид:

Котёл состоит из трёх основных камер:
- загрузочная, служащая для заброса топлива;
- камера дожига, куда подаётся вторичный воздух;
- теплообменник, выходящий в трубу.
Горение сырья направляет поток газа сверху вниз. При подаче воздуха под колосники в массив шамотного кирпича происходит дожиг горючих газов. Продукты распада уходят через теплообменник в дымоотвод. Регулировка тяги выполняется термодатчиком на выходе из котла с помощью цепочки, связанной с заслонкой подачи вторичного воздуха.
Подробную деталировку с размерами и допусками можно взять в стандартном чертеже:
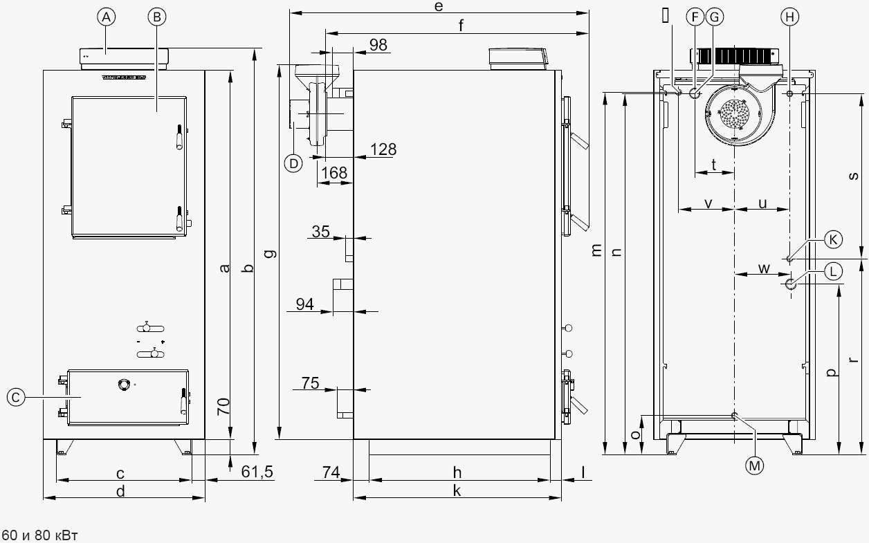
A — контроллер контура котла; B — дверца загрузки; C — крышка зольника; D — дымоотвод; E — муфта для датчика температурного предохранителя; F — патрубок предохранительного клапана; G — подающая магистраль контура; H — подвод холодной воды в теплообменник; L — обратная магистраль контура котла; M — расширительный бак
Пошаговая инструкция изготовления агрегата
Изготовления пиролизного котла своими руками разделяется на этапы:
- Согласно чертежу выполняется разметка и нарезка деталей для корпуса. После «прихватывания» элементов производится контрольный замер, затем делаются сварочные швы. Установленные на свои места задняя панель и боковые стенки свариваются с двух сторон, зачищаются, обрабатываются сварочным герметиком.
- Производится монтаж труб теплообменника.
- После наваривания внешней стенки и обечаек дверок устанавливается механический регулятор контроля теплоносителя.
- Дымоход собирается наращиванием трубы Последующую часть нужно вставлять внутрь предыдущей, чтобы конденсат не попадал на внешнюю сторону. Готовая конструкция окрашивается огнеупорной краской.
Топливо для пиролизного котла

Твердотопливные пиролизные котлы практически всеядны. В качестве топлива можно использовать разнообразные виды твердого топлива: начиная от обычных дров и заканчивая торфом.
Исходя из этого, топить котел можно любым видом твердого топлива, но все же каждый вид отличается присущими только ему качествами и свойствами, поэтому будет отличаться и работа котла.
Следовательно, выбор топлива является очень важным процессом.

Использование обычных дров.
Дрова для твердотопливных пиролизных котлов должны быть обязательно сухими (допускается использование дров с влажностью не более 20%). От сухости зависит теплоотдача котла.
Загружая поленья в топку, размещать их нужно плотно друг к другу, а вверху следует оставлять свободное пространство не менее 20 см. Стоит отметить, что можно использовать и неколотые дрова.
При первой загрузке необходимо использовать приблизительно половину порции дров, остальные помещаются по мере прогорания в котле. Сгорают дрова неравномерно – их необходимо все время аккуратно раскладывать по поверхности топки, при этом не допускать охлаждения твердотопливного пиролизного котла.
Минусом использования дров есть то, что топку этим видом топлива невозможно автоматизировать. Плюсом же есть тот факт, что это очень экологичный способ отопления помещения.

Использование торфа.
При использовании торфа в качестве топлива для твердотопливного пиролизного котла необходимо придерживаться определенных правил. Во-первых, топливник должен всегда быть очищен от золы, а во-вторых, поддувальная дверца должна быть закрытой.
Торф следует выкладывать на колосниковую решетку. На этот слой для лучшей растопки можно положить немного дров и прикрыть все это еще одним слоем торфа. Затем открыть задвижку дымоотвода и приступать к растопке.
Во время работы твердотопливного отопительного оборудования необходимо следить за тем, чтобы торф всегда лежал равномерным слоем. Такое расположение торфа обеспечит максимальную теплоотдачу.

Использование угля.
Чтобы получить наилучший уровень тепла с помощью угля в качестве топливо, необходимо использовать специальный топливник – шахту с колосниковой решеткой и вертикальными стенками.
Топливник должен быть достаточно высоким, расстояние между сводом и решеткой должно быть минимум 50 см. Топочные и поддувальные дверцы должны быть сделаны из чугуна, оптимальное расстояние между дверцами – 21 см.
Кроме того, дверцы рекомендуется строго герметизировать. Следует помнить, что при использовании угля новую порцию топлива стоит подбрасывать только тогда, когда первая хорошо разгорелась. При этом нужно постоянно поддерживать равномерный слой и не допускать прогорания угля до решетки.

Использование топливных брикетов.
Сегодня топливные брикеты – это самое оптимальное средство для топки твердотопливных пиролизных котлов. Можно использовать как угольные, так и торфяные брикеты.
Благодаря использованию брикетов, Вы получите высокую теплотворность, ровный процесс горения (не нужно вмешиваться в сам процесс горения и поправлять слои), высокую плотность горящего слоя, небольшое количество пламени и минимальное количество дыма.
Также преимуществом есть сгорание брикета без остатка и удобство фасовки брикетов. Топку твердотопливного пиролизного котла ведут до полного сгорания топливных брикетов. Если же остаются несгоревшие брикеты, их используют вторично.
Размеры стандартной топки котла регламентируют размеры используемого топлива (габариты дров или брикетов). Как правило, для топлива в газогенераторных котлах используются поленья длиной » 400 мм, и диаметром до 200 мм. Размер топливных брикетов – 300х30.
Вместе с дровами или брикетами можно в качестве топлива использовать и опилки. Но брать их следует не больше трети от основной части топлива по объему.

Инструкция по эксплуатации предусматривает, что влажность топлива не должна быть выше 45%. Чем меньше влажность древесины, тем больше мощность котла и тем дольше он сможет проработать без ремонта.
Например, килограмм древесины 20% влажности при сгорании дает тепла эквивалентного 4 кВт-ч, а дрова 50% влажности – всего 2 кВт-ч. Кроме того, что при увеличении содержания влаги в топливе, снижается удельная теплота сгорания, значительно увеличивается расход топлива.
Требования безопасности и правила эксплуатации
Несоблюдение правил пожарной безопасности при установке котла может привести к пожару, к тому же это ставит под угрозу здоровье и жизнь вашей семьи.
Основные правила которые требуется учесть:
- Устанавливаться котел, должен в специально отведенном для этого месте (котельная);
- Под основанием котла должна быть вымощена площадка из кирпича либо залита бетоном;
- Расстояние между котлом и стенами не должно быть меньше 30 см. Окружающие котел стены должны быть обшиты листами металла;
- Обязательное наличие вентиляционного отверстия в котельной, для постоянного притока свежего воздуха.
Важно! Утепленный дымоход предотвратит образование на его стенках конденсата, что увеличит эксплуатационный срок службы трубы. Настройка правильного функционирования котла после установки также имеет свои особенности
В норме котел не дымит. Перед первым включением котел подсоединяется к дымоходу и наполняется водой. На котле размещается терморегулятор для контроля показателей температуры жидкости. Чтобы смонтировать термометр в котлах предусмотрены специальные отверстия
Настройка правильного функционирования котла после установки также имеет свои особенности. В норме котел не дымит. Перед первым включением котел подсоединяется к дымоходу и наполняется водой. На котле размещается терморегулятор для контроля показателей температуры жидкости. Чтобы смонтировать термометр в котлах предусмотрены специальные отверстия.
Последовательность включения котла:
- Вентилятор подключается к электросети и проверяется на работоспособность. Воздушные заслонки должны быть на среднем положении.
- В загрузочный бункер необходимо положить небольшое количество бумаги и щепок. Дверцы камеры потребуется закрыть.
- Открывается дроссельная заслонка дымохода, включается вентилятор и поджигается бумага.
- После разгорания дров форсунка перекрывается.
- Через нижний отсек сжигания выполняется контроль горения.
- После закипания жидкости потребуется отключить вентилятор. Пламя погаснет, а вода начнет остывать.
Топить дровами не слишком удобно, поскольку в обычных условиях древесина сгорает очень быстро, а значительная часть тепла при этом не используется. Приходится постоянно загружать топливо в котел или печь. Пиролиз предполагает создать такие условия, при которых топливо сгорает значительно медленнее, отдавая при этом заметно большее количество тепла.
Перед началом работ рекомендуется внимательно изучить схему устройства пиролизного котла, чтобы понять принципы его функционирования и избежать ошибок
На ней отражено положение таких необходимых элементов, как:
- отверстие для воздуха;
- камера сгорания;
- дымовые каналы;
- трубы для подачи и отвода воды;
- регуляторы;
- место установки вентилятора и т. п.
На этом чертеже подробно представлена конструкция пиролизного котла, который можно сделать своими руками. Рекомендуется точно соблюдать все указанные разработчиком размеры
Чтобы сделать своими руками пиролизный котел подходящей мощности, нужно изготовить элементы соответствующего размера. Правильное соотношение размеров гарантирует успешный результат
Котел мощностью 25-30 кВт может стать оптимальным выбором для небольшого дома. Изготовление небольшого агрегата позволит сэкономить и время, и средства.
Создаём пиролизный котёл
Разбор схем и чертежей
Чтобы создать пиролизный котёл своими руками, важно тщательно изучить схемы и чертежи. Именно по ним вы сможете подобрать конструкцию и максимально точно определить количество нужных для строительства материалов
На схеме и чертеже пиролизного котла отображены основные элементы, без которых невозможно построить конструкцию своими руками:
На схеме и чертеже пиролизного котла отображены основные элементы, без которых невозможно построить конструкцию своими руками:
- регуляторы,
- дымовые каналы,
- отверстия для воздуха,
- трубы для подачи воды,
- трубы для отвода воды,
- камера сгорания,
- вентилятор.
Очень важно при изготовлении пиролизного котла своими руками придерживаться чертежей и схем. Дело в том, что это сложное устройство, в котором будут происходить высокотемпературные процессы
Поэтому малейшая ошибка может обратиться аварийной ситуацией
Поэтому малейшая ошибка может обратиться аварийной ситуацией.
Для частного дома будет достаточно пиролизного котла, мощность которого составляет 40 кВт. Не стоит стремиться к большой мощности. Дело в том, что в таком случае конструкция становится значительно сложнее. Мало того, конечная стоимость также увеличивается.
Выбор мощности пиролизного котла, который вы собираетесь создать, влияет на размер ключевых деталей на чертеже или схеме. От правильного подбора размеров зависит нормальное функционирование устройства.
Совет. Если вы владелец маленького домика, то можно остановить свой выбор на котле с мощностью в 30 кВт. Этого будет более чем достаточно.
Инструменты, необходимые для изготовления котла своими руками
Чтобы своими руками сделать конструкцию, работающую на основе пиролизной реакции по чертежам и схемам, необходимо запастись некоторым инвентарём. Для воплощения задумки в жизнь, вам понадобятся следующие материалы и инструменты:
- болгарка,
- сварочный аппарат,
- шлифовальные круги,
- электрическая дрель,
- электроды,
- трубы различного диаметра,
- полосы стали,
- термодатчик,
- вентилятор,
- металлические листы.
Это базовый набор, который необходим, чтобы создать пиролизную систему своими руками по схемам и чертежам. Конечно же, в процессе работы может возникнуть необходимость в дополнительных инструментах и материалах.
Внимание. Толщина стали для корпуса должна быть 3 мм, а лучше 4
Тонкости сборки
После того как вы выберите подходящую схему, можно будет приступить к сборке. При этом необходимо придерживаться следующих рекомендаций:
Отверстие, через которое в топку будут попадать дрова и брикеты должно располагаться немного выше, чем у обычных твердотопливных конструкций. Не забудьте про ограничитель. Его главная задача — это контролировать количество воздуха. Для его создания нужна семидесятимиллиметровая труба в сечении. Её длина должна быть больше корпуса. К ограничителю приваривается диск. Элемент должен быть выполнен из стали. Место приваривания — низ конструкции. В результате у вас получится зазор в 40 мм. Чтобы установка ограничителя стала возможной необходимо сделать дырки в соответствующих местах крышки. Лучшей формой для отверстия, через которое будут загружаться дрова является прямоугольник
При этом важно не забыть о дверце. Она должна иметь специальную накладку для лучшей фиксации. Также в конструкции необходимо предусмотреть отверстие, через которое будет удаляться зола
Трубу для теплоносителя нужно сделать с изгибом
Также в конструкции необходимо предусмотреть отверстие, через которое будет удаляться зола. Трубу для теплоносителя нужно сделать с изгибом
Это позволит повысить отдачу тепла.
Ещё одним важным элементом согласно любой схеме и чертежу является вентиль. С его помощью вы сможете контролировать количество теплоносителя, поступающего внутрь. Поэтому лучше всего расположить его в удобном и легкодоступном месте. Сам алгоритм создания пиролизного котла своими руками по чертежам вы можете увидеть на видео внизу.
После сборки огромное значение имеет первый запуск. Лишь после того, как вы убедитесь, что в продуктах горения нет угарного газа, можно будет утверждать, что всё сделано правильно. Для этого лучше использовать специальное оборудование.
Создать котёл, работающий на основе принципа пиролиза можно своими руками. Но перед тем как начать работу необходимо написать проект. Основную роль в нём будет играть рисунок со схемой изделия и размерами.
Обсудить статью на форуме
Принцип работы пиролизных котлов и их особенности
Создавая пиролизные котлы своими руками, люди стремятся сэкономить денежные средства в своем кошельке. Если газовое оборудование стоит довольно дешево, то твердотопливные агрегаты просто поражают своей ценой. Более-менее приличная модель мощностью 10 кВт обойдется в 50-60 тысяч рублей – дешевле провести газ, если рядом проходила бы газовая магистрально. Но если ее нет, то выходов два – приобретать заводское оборудование или делать его самостоятельно.
Изготовить пиролизный котел длительного горения своими руками можно, но сложно. Давайте для начала разберемся, для чего вообще нужен пиролиз. В обычных котлах и печах дрова сгорают традиционным способом – при высокой температуре, с выбросом продуктов сгорания в атмосферу. Температура в камере сгорания составляет порядка +800-1100 градусов, а в дымоходе – до +150-200 градусов. Таким образом, солидная часть тепла просто улетает наружу.
Прямое сгорание дров применяется во многих отопительных агрегатах:

Твердотопливные пиролизные котлы могут использовать несколько видов топлива, в том числе отходы деревообрабатывающего производства и сельскохозяйственной переработки.
- Твердотопливные котлы;
- Печи-камины;
- Камины с водяными контурами.
Главным преимуществом данной методики является то, что она отличается простотой – достаточно создать камеру сгорания и организовать отвод продуктов сгорания за пределы оборудования. Единственным регулятором здесь становится дверка поддувала – регулируя просвет, мы можем отрегулировать интенсивность горения, тем самым воздействуя на температуру.
В пиролизном котле, собранном своими руками или купленном в магазине, процесс сгорания топлива идет несколько по-другому. Дрова здесь сгорают при низкой температуре. Можно сказать, что это даже не горение, а медленное тление. Древесина при этом превращается в подобие кокса, одновременно выделяя горючие пиролизные газы. Эти газы отправляются в камеру дожигания, где сгорают с выделением большого количества тепла.
Если вам кажется, что данная реакция не даст особого эффекта, то вы глубоко заблуждаетесь – если заглянуть в камеру дожигания, то здесь будет видно ревущее пламя ярко-желтого, почти белого, цвета. Температура сгорания – чуть выше +1000 градусов, а тепла в этом процессе выделяется больше, чем при стандартном горении древесины.
Для того собранный своими руками пиролизный котел смог показать максимальную эффективность, необходимы дрова с низким содержанием влаги. Влажная древесина не даст оборудованию выйти на полную мощность.
Реакция пиролиза знакома нам еще со школьного курса физики. В учебнике (а может и в лабораторном кабинете) многие из нас видели интересную реакцию – древесина помещалась в стеклянную запечатанную колбу с трубкой, после чего колба нагревалась над горелкой. Через несколько минут древесина начинала темнеть, а из трубки начинали выходить продукты пиролиза – это горючие газы, которые можно было поджечь и понаблюдать за желто-оранжевым пламенем.
Аналогичным образом работает и пиролизный котел, собранный своими руками:

На одной загрузке топлива пиролизные котлы работают около 4-6 часов. Так что большим и стабильно пополняемым запасом дров стоит озаботиться заранее.
- В топке разжигаются дрова до появления устойчивого пламени;
- После этого доступ кислорода перекрывается, пламя гаснет почти полностью;
- Запускается дутьевой вентилятор – в камере дожигания появляется высокотемпературное пламя.
Устройство пиролизного котла довольно простое. Основными элементами здесь являются: камера сгорания, в которой складированы дрова, и камера дожигания, в которой сгорают продукты пиролиза. Передача тепла в отопительную систему осуществляется через теплообменник
В схеме пиролизного котла ему уделяется особое внимание
Все дело в том, что теплообменники в пиролизных котлах, собранных своими руками, устроены не так, как в газовом оборудовании. Продукты сгорания с воздухом проходят здесь через множество металлических труб, омываемых водой. Для увеличения эффективности котловая вода омывает не только сам теплообменник, но и все другие узлы – здесь создается своего рода водяная рубашка, которая отбирает излишки тепла от раскаленных элементов котельного агрегата.
Как изготовить пиролизный котел своими руками из газового баллона: пошаговая инструкция
Для начала требуются чертежи пиролизных самодельных котлов. Их находят в соответствующей литературе или на сайтах домашних умельцев
Важно рассматривать агрегаты с подробным видео и отзывами от реальных владельцев, в процессе эксплуатации совершенствующих собственное изобретение. Из материалов и инструментов потребуются:
- Стальные листы и профильные трубы толщиной от 3 мм. Если меньше, то со временем температура горения дров деформирует агрегат и приведет его в негодность в момент работы, что чревато риском прогорания стенок и возникновением пожароопасной ситуации.
- Сварочный аппарат постоянного тока и соответствующие электроды.
- Дрель с алмазными сверлами и шлифовальная машина с аналогичными дисками.
- Комплектующие котла: дверцы, короб зольника, дутьевой вентилятор.
В зависимости от конструкции и чертежей, модели агрегатов отличаются. Если создается пиролизная печь своими руками – прибор отопления лучше держит тепло, в отличие от железа, то к описанному набору добавляется шамотный кирпич и асбестовые или паранитовые листы.
Алгоритм или пошаговая инструкция состоит из следующих пунктов:
- По намеченным размерам, приготовленные листы стали и профильные трубы разрезаются. Края заготовок тщательно проходят алмазным шлифовальным кругом – сваривать будет легче и риск пораниться снизится.
- Сваривается корпус – на горизонтальную поверхность укладывается заготовка торца, а к ней прихватками крепят стенки, дно и крышку.
- Внутри котла располагают топку с колосниковой решеткой. В середине наваривается форсунка для отвода отходящих олефинов – газов с высокой температурой.
- Выполняется сборка системы охлаждения. Она состоит из нескольких профильных труб, выходящих за пределы котла.
ПОСМОТРЕТЬ ВИДЕО
Остается приварить на котёл отопления своими руками переднюю стенку, оснащенную поддувальной и загрузочной дверцей, установить агрегат на соответствующую станину и провести испытания.
Устанавливают котел своими руками на бетонную плоскость, залитую по уровню и накрытую асбестовыми листами. Если возможности для заливки нет – вес бетона влияет на фундамент, то полы разбирают, выкладывают кирпичами, устилают паранитом и накрывают листовым железом. Так, безопасность импровизированной котельной будет соблюдена. Пиролизный котёл сделать своими руками — это просто, только надо немного постараться.
Изготовление котла
Пиролизный котёл изготавливается в такой последовательности:
- Если для изготовления прибора будет использоваться газовый баллон, бывший в употреблении, то необходимо стравить остатки газа, открутить болты, которые удерживают горловину баллона, и слить газолин. После этого газовый баллон необходимо заполнить водой и выдержать несколько дней.
- Затем болгаркой баллон распиливается поперёк немного выше сварочного шва. Таким образом, получится идеально ровный металлический цилиндр длиной более 130 см. Внутри этого цилиндра будет происходить пиролизное горение древесины, но тепло выделяемое во время этого процесса должно быть передано теплоносителю. Теплоноситель будет находиться в рубашке, которая будет “одета” на цилиндрическую камеру сгорания.
- Для изготовления рубашки необходимо вырезать из листовой стали 6 пластин: 2 прямоугольные пластины размером 60 * 60 см, и 4 пластины 120 * 60 см. В пластинах размером 60 * 60 см следует вырезать круглые отверстия ровно посередине квадрата. Диаметр этих отверстий должен равняться внешнему диаметру цилиндра, изготовленного из газового баллона.
- Чтобы отверстия идеально подходили для размещения в них пропанового баллона, следует установить на пластину обрезанную крайнюю часть баллона ровно посередине и обвести её маркером. Затем, уже по намеченному рисунку, вырезать отверстие с помощью газового резака.
- Когда изготовление отверстий в нижней и верхней грани будет закончено, из всех приготовленных ранее пластин сваривается ёмкость высотой 120 см и шириной 60 см. Грани с прорезями будут располагаться соответственно в верхней и нижней части резервуара.
- Когда рубашка для баллона будет готова, его помещают внутрь прямоугольного резервуара таким образом, чтобы был отступ от плоскости рубашки сверху около 5 см.
- Затем цилиндр тщательно приваривается к плоскости рубашки. К водяной рубашке привариваются два патрубка.
- Один в нижней части резервуара, он будет использоваться для входа охлаждённого теплоносителя, другой в верхней части рубашки, через него будет осуществляться забор нагретой жидкости. Оба патрубка имеют диаметр трубы 28 мм.
- Когда водяная рубашка будет полностью изготовлена, из металлического “блина”, который образовался при вырезании отверстий для баллона, изготавливается разграничительная пластина. Эта пластина позволит оградить горящий пиролизный газ от топлива, расположенного внутри топочной цилиндрической камеры. С одной стороны к “блину” приваривается уголок 50*50 мм.
- Уголок необходимо установить крест накрест. Таким образом, будет поддерживаться постоянный зазор между заградительной перегородкой и тлеющим топливом.
- Из верхней части баллона, которая была отпилена, изготавливается крышка, для загрузки топлива внутрь пиролизного котла, а также для отвода продуктов горения древесины в специально смонтированный для такой печи дымоход.
- Для того чтобы крышка закрывала топочный цилиндр сверху достаточно плотно необходимо к отпиленной крышке по окружности приварить полосу металла толщиной 1 мм и шириной 50 мм. В верхней части крышки делается отверстие с помощью резака и приваривается отрезок трубы диаметром 112 мм и длиной 0,5 метров.
- В нижней части баллона делается отверстие под размер дверцы зольника, которая затем приваривается электросваркой. Дверца должна иметь в своей конструкции надёжное запорное устройство, исключающее самопроизвольное открытие во время работы отопительного прибора.
- Для регулировки интенсивности горения топлива рядом с дверцей зольника приваривается патрубок диаметром 28 мм, на котором нарезается резьба и устанавливается водопроводный кран с червячным запорным механизмом. Таким образом, можно будет полностью перекрыть поступление воздуха в камеру сгорания, что приведёт к уменьшению интенсивности горения дров, и этот процесс будет продолжаться не менее 8 часов.
Ассортимент
Продукция представлена широко, т. к. извлечение пиролизного газа известно довольно давно и технология апробирована в химической промышленности. Как правило, большинство крупных производителей котельного оборудования имеют, в том числе, и линейку котлов длительного горения. В таблице ниже мы указали наиболее востребованное отопительное оборудование российских, украинских и немецких производителей. Перед рассмотрением конкретной модели настоятельно рекомендуется провести расчет мощности котла с помощью нашего небольшого онлайн-калькулятора. Популярные модели пиролизных котлов для частных домов
| Наименование котла | Краткое описание | Модель | Мощность / примерная отапливаемая площадь, кВт/м2 | Примерная цена, руб. |
| Атом, Мотор Сич | Украинские, для дров размером (380–1000)×(100–410) мм и влажностью до 50 %. Стенки из стали 6–10 мм, защищены керамобетоном | МС-16 | 8–19/80–190 | 120 000 |
| МС-25 | 13–30/130–300 | 138 000 | ||
| МС-32 | 16–38/160–380 | 162 000 | ||
| Теплогарант, Буржуй К | Российские одноконтурные котлы, отличаются низкой стоимостью | Стандарт Т-10 | 10/100 | 40 000 |
| Стандарт Т-20 | 20/200 | 56 000 | ||
| Стандарт Т-30 | 30/300 | 69 000 | ||
| Атмос (Atmos) | Чешское оборудование из стали толщиной 3–8 мм, отдельные элементы которого защищены керамическими блоками | DC 15E | 10–15/100–150 | 72 000 |
| DC 18S | 14–20/140–200 | 81 000 | ||
| DC 22S | 15–22/150–220 | 94 000 | ||
| DC 25S | 17–25/170–250 | 96 000 | ||
| Вулкан (Vulcan) | Украинские одноконтурные из стали толщиной 5 мм. Форсунка и зольник изготовлены из высокопрочного жаростойкого бетона | ECO 15 | 15/80–100 | 81 000 |
| ECO 20 | 20/150–200 | 85 000 | ||
| ECO 25 | 25/200–250 | 87 000 | ||
| ECO 30 | 30/250–300 | 91 000 | ||
| Диво | Российские пиролизные котлы, могут комплектоваться электроТЭНом, автоматическим или ручным регулятором тяги | 10 | 8–12/100 | С ручным регулятором тяги: с ТЭНом – 55 000, без ТЭНа – 49 000. С автоматическим регулятором тяги: с ТЭНом – 66 000, без ТЭНа – 59 000 |
| 18 | 12–18/185 | С ручным регулятором тяги: с ТЭНом – 65 000, без ТЭНа – 59 000. С автоматическим регулятором тяги: с ТЭНом – 76 000, без ТЭНа – 69 000 | ||
| 30 | 18–30/300 | С ручным регулятором тяги: с ТЭНом – 82 000, без ТЭНа – 75 000. С автоматическим регулятором тяги: с ТЭНом – 91 000, без ТЭНа – 84 000 | ||
| Траян (некоторые пишут Троян) | Российские котлы длительного горения с возможностью подключения электроТЭНа | Т10 | 10/90 | 47 000 |
| Т15 | 15/120 | 51 000 | ||
| Т20 | 20/120–220 | 56 000 | ||
| Т30 | 30/240–330 | 70 000 | ||
| Buderus (Будерус) | Немецкие одноконтурные котлы | Logano S121-2 21 | 21/210 | 163 000 |
| Logano S121-2 26 | 26/260 | 166 000 | ||
| gano S121-2 32 | 32/320 | 177 000 | ||
| Viessmann (Виссманн) | Еще один титулованный немецкий производитель котлов из стали толщиной не менее 8 мм | Vitoligno 100-S VL1A024 | 25/250 | 170 000 |
| Vitoligno 100-S VL1A025 | 30/300 | 220 000 | ||
| Гейзер | Российские одноконтурные (ПК) или двухконтурные (ПК2) котлы длительного горения | ПК-10 (ПК2-10) | 10/100 | 48 000 (51 000) |
| ПК-15 (ПК2-15) | 15/150 | 53 000 (56 000) | ||
| ПК-20 (ПК2-20) | 20/200 | 59 000 (61 000) | ||
| ПК-30 (ПК2-30) | 30/300 | 72 000 (76 000) | ||
| БТС | Украинские котлы из стали толщиной 5 мм (класс стандарт) и 6 мм (класс премиум). Керамическая футеровка | БТС-15 | 15/180 | 117 000 |
| БТС-20 | 20/230 | 121 000 | ||
| БТС-25 | 25/280 | 139 000 |
Предлагаем вам посмотреть небольшое видео о работе котлов Траян.
Немного визуализации работы пиролизных котлов Будерус – на ролике ниже.
И еще о довольно популярных котлах от ТеплоГаранта – Буржуй К.
Да, кстати, есть модели, которые рассчитаны на работу с разным топливом. Это может быть уголь, торф и даже пеллеты. Использование пеллетных котлов позволяет в значительной мере автоматизировать процесс подачи топлива.





































