Как сделать самодельные детские качели подвесные?
Подвесные качели бывают самые разнообразные. Воспользуйтесь нашими рекомендациями и сделайте такие конструкции самостоятельно.
Вариант 1
Для данной качели возьмите:
- Деревянную доску
- Веревку
Самодельная качеля
Процесс выполнения:
- В доске сиденья высверлите отверстия, в них проденьте веревку таким образом, чтобы она зашла в 1 отверстие, а во 2 отверстии вышла.
- Чтобы усилить конструкцию, добавьте под сиденьем в обеих сторон дощечки. При этом в этих дощечках тоже просверлите отверстия, продев через них веревку.
- Повесьте качели на любую опору.
Вариант 2
В данной модели тоже понадобятся простые материалы:
- Цепь
- Треугольник из металла
- Плотный брезент
Из брезента
Процесс выполнения:
- Металлические треугольники повесьте на цепи.
- Сквозь треугольники проденьте брезент.
- Загните края брезента вниз, поставьте пару крупных заклепок.
Вместо заклепок можете использовать обыкновенные болты и гайки. Но, чтобы болты не прорывали отверстие, подложите под них металлические прокладки.
Вариант 3
Для такой качели возьмите:
- Сиденье от небольшого стула
- Толстые пруты
- Веревку
Качеля стул
Процесс выполнения:
- Под сиденье положите пруты. 1 прут положите под сиденье в районе спинки, 2 прут положите спереди сиденья.
- Вырежьте в углах стула отверстия.
- Вденьте в образовавшие дырки веревки.
- Обвяжите данными веревками кончики прутьев.
Варианты оформления сидений
После того, как опора конструкции готова можно приступать к изготовлению сидения. Ниже мы расскажем о том, как соорудить самые популярные варианты.
Вариант №1 — классический
Оптимальный вариант сиденья представляет собой металлический каркас, обшитый деревянными планками. Для начала нужно определиться с размерами.

Допустим, ширина сиденья 160 см, глубина 46 см, а высота спинки 52 см. Давайте разберемся как собрать сидение таких размеров.
Процесс изготовления сиденья состоит из следующих этапов:
- Подготавливаем металлическую основу. Для этого необходимо при помощи болгарки отрезать три куска профильной трубы длиной 160 см, два куска трубы длиной 52 см, а также два куска по 46 см.
- Соединяем элементы основания. Формируем 2 пары боковых труб. Соединяем боковую опору сидения (46 см) и боковую опору спинки (52 см). Для этого обрезаем концы профилей, которые будут привариваться, под углом 45°. После чего соединяем их при помощи сварки. Так же поступаем со второй парой боковых труб.
- Формируем металлический каркас. Привариваем три профильные трубы длинной 160 см к краю сиденья, в углу между сиденьем и спинкой, на верхнем краю спинки.
- Красим основание. Для того чтобы придать красивый внешний вид нашему изделию и защитить его от коррозии, достаточно покрыть его краской.
- Прикрепляем деревянные брусья. Брусья следует выбирать либо 40х40 мм, либо 50х40 мм. Длина – 160 см. Устанавливаем деревянные перекладины с шагом 2 см.
- Покраска либо лакирование. Чтобы сохранить прочность сиденья, деревянные брусья следует покрыть лаком или краской. Лучше всего это делать до установки на каркас. Достаточно пройтись шлифшкуркой соответствующей зернистости, далее покрасить выбранным покрытием.
Несмотря на прямой угол между частями, сиденье будет достаточно удобным для пользователей. Удобство обеспечивает установка сиденья под наклоном.

Все, что осталось — это подготовить сидение к креплению. Для этого с четырех сторон каркаса нужно высверлить отверстия под крепления подвесов. Сюда будут вставляться болты с рым гайками.
Вариант №2 — современный
Если вы хотите придать некую изюминку своей садовой качели, можете использовать в качестве материала для сиденья обычные паллеты.

Для работы нам понадобится: 2 поддона, балки, саморезы, шуруповерт, лобзик.
Такое сиденье изготавливается намного проще, чем предыдущий вариант. Рассмотрим способ изготовления классического сиденья из поддонов в виде скамьи:
- Выбираем поддоны. Они должны быть без повреждений, гнили, трещин. На самом деле, существует несколько видов паллет, но для изготовления сидения лучше остановить свой выбор на евро паллетах.
- Монтируем нижнюю часть. Для этого поддон разрезаем в длину. Ведь при глубине сиденья 80 см, качелей будет не комфортно пользоваться. Разрезаем по краю центральной нижней перемычки. Получится основа для сиденья глубиной 47 см.
- Изготавливаем спинку. Аналогично, отрезаем часть поддона шириной 47 см. Прикрепляем саморезами спинку к сиденью.
- Формируем подлокотники. Отрезаем при помощи лобзика 2 куска бруска длиной 47 см, и два куска длиной 23 см. Соединяем попарно куски разной длины под углом 90°.
- Прикрепляем подлокотники к сиденью при помощи длинных саморезов.
- Красим или лакируем готовое изделие.
Рекомендуем собрать сидение именно с подлокотниками. Они не являются обязательным атрибутом такого сиденья, но придают ему завершённый вид и добавляют удобства.
Кстати, из поддонов можно собрать не только сидение для качели. С подборкой мебели из поддонов можно ознакомиться в этом материале.
Вариант №3 — сиденье в виде кровати
Это самый простой вариант, который предусматривает наличие следующих материалов: 2 поддона, 3 балки длинной 160 см, саморезы, шуруповерт, краска или лак, шлифшкурка.
Процесс изготовления включает в себя соединение поддонов широкой стороной друг к другу. Делается это при помощи 3 брусьев, которые крепятся ко дну поддонов, два по краям, один – по центру.
Соединяем брусья с поддонами при помощи саморезов. Далее проходимся по поверхности поддона шлифшкуркой, чтобы убрать мелкие неровности. Последний этап – лакирование или покраска.

Удобное сидение для садовых качелей во дворе
Еще один важнейший атрибут подвесных уличных качелей – сидение. Его исполнение должно обеспечивать необходимый комфорт и безопасность. Конструкция сидения выбирается в зависимости от возраста детей, а также желаемого дизайнерского оформления.

Дерево является наиболее подходящим для основания самодельного сидения, так как не проводит тепло, в отличие от металла. Самая простая конструкция состоит из доски, при этом ее исполнение может быть достаточно элегантным.
Сидение со спинкой и подлокотниками наиболее удобно для любого возраста. Сдвижная поперечная планка заметно повышает уровень безопасности. Если также предусмотреть ремень между ногами, соскальзывание ребенка с сидения становится невозможным.

Фантазия умельцев безгранична, и практических вариантов исполнения «сидушки» — бесчисленное множество. Оригинально и функционально применение старого стула. Каркас из металлических труб в сочетании с основанием из фанеры будут служить долго. Обрезки пластиковых водопроводных труб – простое и бесплатное решение. Конек-горбунок с глубокой посадкой никогда не сбросит с себя своего седока. Сидение для маленьких подвешивают на шнурах, цепи подойдут для качелей подростков, и абсолютную надежность обеспечивают металлические трубы.
Виды, размеры, особенности конструкции

Качели из веревки своими руками можно изготовить из разных материалов и различными способами. Они делятся по:
- Виду материала для изготовления опорной конструкции – металл или дерево.
- Способу крепления боковых опор. «А», «Л» или «П» образный вид.
- Типу подвески.
- Форме и размеру сидения.
- Методу изготовления сидения и материалу, из которого его делают.
Обычно равняются на следующие размеры:
- Длина перекладины 280 см.
- Высота до перекладины 235 см.
- Ямы под фундамент расположены по квадрату 200х280 см.
- Расстояние между опорами обычно выбирают равным высоте самих качелей.
Количество креплений сиденья берут от 3 до 4 и больше. Гнездо должно быть устойчивым, не должно возникнуть ситуации, чтобы ребенок перевернулся и выпал из гнезда.
Изготовление деревянных качелей своими руками
Самостоятельная сборка качелей для всей семьи — процесс трудоемкий, но при наличии сноровки и соблюдении установленной последовательности работ можно смастерить конструкцию своими руками и обустроить место отдыха с комфортом.
Стационарные деревянные качели для дачи
Рассмотрим последовательность сборки одноместной качели для сада простейшей конструкции. Она состоит из двух деревянных брусьев, закопанных вертикально в землю, соединенных в верхней части ригелем. К нему крепятся канаты сиденья. Для формирования каркаса понадобятся два деревянных бруса сечением 100×100 см и длиной 3 м — для стоек, а также еще один длиной не менее 1,5 м — для ригеля.
Работа выполняется в такой последовательности:
- Разметьте на площадке места под опорные стойки дачных качелей в соответствии с чертежом.
- В выбранном месте выкопайте две ямы глубиной 1,2-1,5 м и диаметром 30-40 см. Для облегчения работы используйте ручной бур.
- Насыпьте на дно ямы щебень слоем 20-50 см.
- Участки брусьев в 1 м, которые будут под землей, покройте битумной мастикой и обмотайте рубероидом для защиты от влаги.
- Соедините стойки верхней перекладиной.
- Установите брусья в ямы.
- Проконтролируйте, чтобы верхняя перекладина располагалась горизонтально. Залейте яму с брусьями раствором из цемента и песка в пропорции 1:3.
- Отрежьте кусок доски длиной 60 см и тщательно обработайте ее поверхность.
- По краям доски просверлите два отверстия.
- Проденьте через них канат: в одну вошел, из другой — вышел.
- Обмотайте ригель двумя концами каната.
- Проконтролируйте расстояние от сиденья до земли и при необходимости измените его.
- Покрасьте стойки.
- После застывания бетона качелями можно пользоваться.
Переносные деревянные качели для дачи
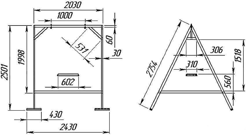
Чтобы продлить срок службы качелей, на зиму их прячут в сарай или другое закрытое место. В этом случае изготавливают конструкцию, у которой опоры не закапывают. Рассмотрим процесс изготовления переносной качели из дерева в форме буквы «А» с двумя горизонтальными распорками и такими размерами: ширина — 2,1 м, глубина — 1,235 м, высота — 2,2 м.
В таблице приведен комплект необходимых материалов для изготовления переносных деревянных качелей:
| Элемент качели | Сечение брусьев, мм | Длина брусьев, м | Количество, шт. |
| Каркас | |||
| Ригель | 150х45 | 2,1 | 1 |
| Стойка | 150х45 | 2,775 | 4 |
| Нижняя распорка | 150х45 | 0,99 | 2 |
| Верхняя распорка | 150х45 | 0,32 | 2 |
| Сидение и спинка | |||
| Задняя перекладина | 70х35 | 0,6 | 2 |
| Брусок нижний | 70х35 | 1,3 | 2 |
| Стойка подлокотника | 70х35 | 0,275 | 2 |
| Подлокотник | 70х35 | 0,6 | 2 |
| Планка сидения | 70х25 | 1,3 | 8 |
| Планка спинки | 70х25 | 1,3 | 2 |
| Верхняя планка | 90х25 | 1,3 | 1 |
| Рым-болт | 100 | 6 | |
| Цепь | 8 | 8,4 | 1 |
Работы по сборке качели из дерева для дачи выполняйте в такой последовательности:
- Соедините стойки 150х45 мм одной стороной, чтобы получился угол 40-45°. Чтобы повысить надежность, брусья в месте соединения покройте клеем и стяните болтовыми соединениями. Такая фиксация надежнее, чем соединение саморезами.
- Боковые стойки в каждой паре посередине и внизу соедините перекладиной для повышения жесткости.
- Угловые части стоек соедините ригелем. К нему будет крепиться сиденье.
- Установите конструкцию вертикально на жесткое основание.
- Из планок сечением 70х35 мм сбейте каркас сидения размером 130х60 см, а из планок 70х25 мм — каркас спинки размером 130х60 см.
- Заполните рамки планками.
- Из тех же реек сделайте подлокотники и закрепите их к сиденью саморезами или другим способом.
- Закрепите спинку к каркасу посадочного места и подлокотникам саморезами.
- По краям сиденья и спинки прикрутите рым-болты (по 2 на каждую сторону).
- В перекладине просверлите 2 отверстия и закрепите в них рым-болты.
- Прикрепите цепь соответствующей длины к рым-болтам карабинами.
- Из брусков 20×30 или 30×40 мм сбейте каркас навеса и закрепите его к верхней поперечной балке под углом 10-20°.
- Покрасьте деревянные детали.
Осталось только натянуть на каркас полотно. Лучшим материалом для навеса считается полиэстер или сетчатый полиэтилен. Последний дешевле, но срок службы полиэстера достигает 10 лет. К тому же он отталкивает грязь, поэтому не требует стирки. Качели с навесом подобной конструкции на зиму рекомендуется прятать в защищенное от непогоды место.
Более практичной считается двускатная крыша с битумной черепицей, которая не боится непогоды. Для ее создания сформируйте стропильную систему из деревянных брусков, которая обеспечит наклон навеса 10-20°, и закрепите ее к верхней поперечной балке. Сделайте обрешетку на стропильной системе и уложите на нее битумную черепицу.
Основание – главный элемент конструкции
Стойки садовой качели должны быть надежными и крепкими. Они обеспечивают устойчивость целой конструкции. При изготовлении качели из металла лучше всего выбрать основание А-типа или П-типа. Оба варианта достаточно устойчивы, но при этом просты в изготовлении.
Вариант 1 — основание А-типа
Такая конструкция состоит из двух стоек в форме буквы А, соединенных между собой перемычкой. Для их сборки нужно нарисовать чертеж с указанием всех размеров, это поможет правильно рассчитать необходимое количество материалов.

Конструкция может быть сварной, или закрепляться при помощи болтов. Мы рекомендуем сваривать детали, потому что болты имеют острые углы, их желательно дополнительно обрабатывать для предотвращения травмирования.
Особенно это актуально тем владельцам загородных участков, у которых есть маленькие детки. Также, у крепления болтами со временем появится люфт.
С методом соединения разобрались, теперь стоит приступить к чертежам. Нужно определить, сколько мест будет предусмотрено на качели. Оптимальный вариант – 3. Для трехместной качели будет достаточно ширины сидения 150 – 160 см. Тогда прибавляем минимум 40 см зазора между сидением и опорами — по 20 см с каждой стороны и получаем ширину качели 200 см.
Свариваем опоры. Они должны быть идентичны. Для этого возьмем четыре трубы длиной 300 см (50 см трубы будет вкапываться в землю для устойчивости конструкции).
Угол соприкасания труб в верхней части определяем следующим образом: две трубы кладем на землю в горизонтальном положении в виде треугольника. Нижнюю часть труб разводим до тех пор, пока расстояние между концами труб не составит 230 см. Измеряем угол вверху между трубами, это и будет оптимальный вариант для сваривания.
После того, как вы соединили верхнюю часть, нужно добавить распорку посередине выступающей над землёй части. Получается, если длина целой трубы 300 см, отнимаем 50 см для углубления, наружная часть составит 250 см. Где-то на высоте 120 см привариваем трубу для улучшения надежности конструкции.

Некоторые умельцы не предусматривают такую распорку, и у них опора качели напоминает букву Л. Но для того, чтобы обезопасить себя и своих близких, рекомендуем вам не пренебрегать данной деталью.
После изготовления двух А-образных элементов можно приступать к их соединению с помощью центральной перекладины, длина которой 200 см.
Вариант 2 — П-образное основание
Такой каркас также отличается надежностью. Единственный нюанс — необходимо забетонировать основание не менее чем на 50 см. Иначе надежность конструкции будет под сомнением. Плюсом такого каркаса является минимум используемого материала.

Чтобы соорудить такую конструкцию вам понадобиться всего три трубы или три профиля. Две боковые опоры длиной не менее 230 см, чтобы 50 см можно было опустить в землю и забетонировать. Горизонтальная перекладина для трехместной качели должна быть не менее 200 см в длину.
Достаточно приварить к горизонтальной перекладине по краям две опоры под углом 90° и каркас готов. Осталось только покрасить металл, для предотвращения коррозии.
Красивые примеры
Эти качели со спинкой отлично подойдут для отдыха на открытом воздухе. Изогнутая спинка позволяет откинуться назад, расслабиться и наслаждаться дополнительным комфортом. Красивый рисунок с перекрестным переплетением и свисающая бахрома отлично сочетаются.

Эти качели станут удобным местом для отдыха. Мягкая подушка обеспечивает комфортное сидение.

Большие овальные качели – хит для родителей. Пока они отдыхают и расслабляются, никаких драк больше не будет. Одновременно качаться могут сразу несколько детей.

Тканевые детские подвесные качели оснащены водонепроницаемым сидением из синтетической ткани. Все прошито прочными капроновыми нитками. Пусть ваши дети проводят больше времени на свежем воздухе.

Качели-гнездо идеально подойдут для обустройства детской площадки. Подарите своим детям веселое место, где можно сидеть и раскачиваться.
Качели со скамейкой на несколько человек
Этот тип семейных качалок оригинально впишется в планировку дачного участка. Они в большом ассортименте выпускаются серийно. Переносные или стационарные комплектуются навесом (тентом), либо с жестким укрытием (дерево, поликарбонат). Качели с крышей выгоднее, металлические элементы не греются на солнце, есть защита от дождя. Дополнительно устраивают противомоскитные занавески.
Качели со скамейкой, рассчитанные на 2–3 человек, — типовые модели для садовых участков.
123Пред.1из3След.
Основные элементы конструкции.
| Конструкция с А–образными опорами | Комплектация |
| Каркас |
|
| Скамья, сидение |
|
Есть 2 типа соединения деталей. Предпочтительнее сварной, так как винтовой крепёж под воздействием эффекта вибрации при раскачивании раскручивается. Необходимо периодически подтягивать болты и гайки.

В перекладине просверливают отверстие, в него вставляют болт, к которому крепится рым–гайка. При помощи соединительного кольца подвешивают скамью. Соединение периодически смазывают, чтобы избежать повреждения механизма, скрипа.

Скамью подвешивают к ригелю на канатных верёвках, цепях, металлических тросах
Строительство железных качелей начинают с установки каркаса. Для переносных конструкций правильнее сделать соединительную раму из металлопрофиля по нижнему периметру каркаса. Стационарные — вкапывают в землю на глубину 50–60 см, затем бетонируют.
П–образные качели
Они конструктивно проще и состоят из боковых столбов и перекладины. Устойчивость обеспечивают верхние угловые планки, соединяющие опоры.

П–образная конструкция менее устойчива, поэтому такие качели заглубляют в землю, с последующим бетонированием
При составлении плана, схемы модели нужно учесть некоторые моменты. Сидения подвешивают на высоте 50–60 см. От боковых опор делают минимальный отступ в 30 см.
Качели для сада из металла
Когда будет выбран вид конструкции, можно перейти к поиску готовых чертежей качалок в саду, или прочерчивают схему своими руками. Детские модели подойдут на тот случай, когда конструкция планируется на изготовление из подсобных материалов, которые есть в хозяйстве. Есть 3 разновидности изделий для отдыха, и их форма сильно напоминает буквы П, Л и А. Такой конструктив можно называть оптимальным с точки зрения надежной устойчивости. К главным преимуществам металлический конструкций относятся:
- Прочность и надежность.
- Большой эксплуатационный срок.
- Практичность, потому что за ними просто ухаживать.
- Устойчивость к температурным перепадам, а также излучению ультрафиолета.
- Отлично выдерживают нагрузки от ветра.
- Органично вписываются в дизайн ландшафта.
Металл требуется комбинировать с древесиной или пластиком.
Порода дерева
Так как качели делаются для установки на садовом участке, их долговечность во многом определяется устойчивостью материала к внешним факторам. В первую очередь – сырости. Любая технология «своими руками» предполагает разумную экономию, поэтому можно вести речь лишь о недорогих и доступных на территории страны породах. Целесообразно выбирать только хвойные. Наличие смолы в их структуре – уже определенная гарантия от гниения древесины.
Более дешевую ель приобретать не имеет смысла по причине недостаточной прочности материала. Возможно, эта порода хороша для конструирования чего-либо, находящегося в статике. Например, садовой лавочки. Качели же, подвергающиеся значительным динамическим нагрузкам, нуждаются в более крепкой древесине. Следовательно, сосна или лиственница. Последняя порода даже лучше, так как со временем, намокая, обретает дополнительную прочность.
Как сделать качели из дерева своими руками
В традиционном исполнении изделие из дерева представляет собой две наклонные стойки, для соединения которых используют поперечную балку. К ней же монтируют и скамейку. Для защиты от непогоды и солнца можно оборудовать деревянные качели навесом. Уличную конструкцию еще можно изготовить из стволов и веток дерева, но их предварительно рекомендуется очистить от коры. В результате получится довольно оригинальная постройка.
Еще одно решение для приусадебного участка – использование деревянной рамы вместо двух наклонных стоек. Она состоит из перекладины и двух вертикально установленных столбов. Чтобы сделать деревянные уличные качели своими руками, нужно для надежности поставить раму на широкие опоры, которые еще дополнительно усиливают раскосами.

Если есть желание установить на даче интересную конструкцию для отдыха, то можно сделать скамейку из толстых досок и веток. Ее подвешивают к двум круглым брускам, вмонтированным в стойки, а не как обычно к перекладине.

Еще один необычный проект садовых качелей из дерева – конструкция без навеса, для сборки которой потребуется оцилиндрованное бревно. Отличается такая инсталляция простотой монтажа и привлекательным внешним видом. Дополнительно рядом можно оборудовать лестницу, дети ее особенно оценят.

Из бруса и доски делают опорную конструкцию, внешне напоминающую «козлика» для резки дров. Оформить скамейку эффектно цепями, на которые ее подвешивают.

Совет! Для изготовления удобной скамейки можно воспользоваться двумя обрезками горбыля, которые хорошо зачищают и обрабатывают.
Комбинированные качели
Очень часто на приусадебных участках качели имеют комбинированную конструкцию — опоры изготовлены из профильной стальной трубы, а комфортное сиденье — из дерева. Такой вариант обладает определенными преимуществами: металл меньше подвержен воздействию влаги и при соответствующем уходе служит очень долго.

Стальные профили не гниют, не растрескиваются. Сборка возможна как болтами, так и сваркой. Прочность стального каркаса позволяет выдерживать высокие нагрузки. Очень эффектно выглядят качели с деревянным сиденьем и металлическими элементами, украшенными ажурной ковкой.
Материалы и инструменты
Для устройства деревянных качелей своими руками длиной 3 м со скамьей 1,2 м и с А-образными опорами понадобится:
- для стоек — 4 бруса сечением 100х100 мм длиной 3 м;
- для перекладины — брус 80х100 мм такой же длины;
- для боковых перемычек — доска 32х100 или 40х100 мм длиной 6 м;
- для каркаса сиденья — брусок 50х50 мм общей длиной 5 м;
- цепь или канат для подвесов;
- для крепления подвесов и сиденья — карабины, готовые кольца, куски арматуры или толстые гвозди;
- нержавеющий или оцинкованный крепеж — болты, саморезы, гвозди, накладки;
- струбцины, инструменты для резки и шлифовки дерева;
- дрель, шуруповерт;
- антисептическая пропитка, лакокрасочные материалы;
- лопата, цемент, песок, рубероид (для бетонирования опор);
- рулетка, карандаш, угольник.
Качели садовые из бревен с двойной ножкой. Простая инструкция!
Попробуем создать качели из бревен. Помимо надежности и прочности, этот материал придаст им сказочный вид. Для создания придется немного потрудиться, но Вы не будете разочарованы.
Рассмотрим пошагово

Сперва собираем из бревен опоры наших качелей которые имеют А-образный вид

Все соединения делаем с помощью винтов

Затем установим опоры в ямки, можем даже укрепить основания залив туда раствор бетона. На опоры закрепим поперечную планку

Далее собираем из досок качели, закрепляем веревки и вешаем на поперечину

При желании можем покрасить наши качели

Источник фото: jawura.com.pl
Читать полностью (ссылка)
Выбор конфигурации дачных качелей
Как уже говорилось, необходимо определиться со схемой – А-образная, Л-образная (без перемычек), П-образная, Г-образная (с консольным расположением балки для подвеса сидения). После этого определяется положение опор – на грунте или в нем. В первом случае необходимо соединить стойки в жесткую призматическую конструкцию на уровне земли, во втором – увеличить длину опор на величину заглубления (обычно 50…80 см).

При бетонировании или закапывании опор в землю лучше добавить к ним поперечины, как показано на схеме выше – это увеличит устойчивость качели для сада своими руками.
После выбора всех необходимых элементов конструкции проводятся следующие работы:
- нарезка металлопроката на куски нужной длины;
- сварка или скрепление фитингами на болтах стоек;
- сборка конструкции со всеми поперечинами с помощью сварки или болтовых соединений;
- установка изделия на грунте или в грунте (с последующим бетонированием опор или засыпкой и трамбовкой);
- монтаж подшипников или петель для подвеса сидения (это может быть сделано на стадии общей сборки качели садовой своими руками);
- подвес сидения и проверка работоспособности изделия;
- окраска (иной вид покрытия) всех деталей антикоррозионной краской.
Если качели из металла имеют навес или другие дополнительные элементы, то они монтируются на стадии общей сборки. Для навеса последним этапом работ будет установка покрытия (из поликарбоната, дерева или других материалов).
Как сделать детские качели и для отдыха на подшипниках: чертежи, размеры, фото
Чтобы изготовить качели на болтах, приобретите заранее такие материалы:
- Трубу диаметром 5 см и длиной 1 м 50 см
- Трубу диаметром 6 см 3 мм и длиной 6 м 20 см
- Трубу диаметром 2 см 4 мм и длиной 8 м 40 см
- Подшипник (внутренний диаметр 3 см, длина и внешний диаметр 8 см 5 мм) – 2 шт.
- Трубу диаметром 2 см 7 мм и длиной 1 м 20 см
- Трубу диаметром 9 см и длиной 1 м
- Уголок 59 длиной 2 м
- Трубу профильную 2 см х 2 см х 2 мм длиной 5 м
- Цепь длиной 7 м
- Пластину из металла шириной 5 см высотой 5 мм длиной 2 м

Качеля
Чертеж комплекса
Результат
Процесс выполнения:
- Трубу диаметром 6 см 3 мм разрежьте на пару идентичных частей. Приварите к этим заготовкам трубу диаметром 5 см.
- На каркас прикрепите конструкцию, на которой будут установлены подшипники. Отрежьте маленькие кусочки трубы диаметром 9 см, приблизительно по 5 см. В данные трубы вставьте подшипники, обварите, при этом сжимайте трубу, сужайте сам подшипник снаружи. Дабы подшипники не смогли слететь с труб, на внешней стороне прикрепите маленькие металлические куски. Между этими кусками установите во внутреннюю дырочку трубу, диаметр которой составляет 2 см 7 мм.
- В данной трубе прикрепите пластины, к которым будут прикреплены карабины. Эту конструкцию прикрепите к верху рамы, используя небольшие пластины. Перед прикреплением подшипников, смажьте их хорошенько. А когда будете проводить варочные работы, постоянно охлаждайте конструкцию при помощи воды.
- Когда подготовите раму, под нее выкопайте ямы, залейте их бетоном, прикрепите откосы.
- Возьмите профильную трубу 2 см 2 см 2 мм, изготовьте из нее сиденье.
- При помощи болтов к каркасу присоедините деревянные дощечки, только заранее отшлифуйте их. Полученный каркас присоедините к цепочкам, наденьте их на карабины.
- Покрасьте всю конструкцию.
Уличные деревянные качели – детская радость в полете
Изготовление качелей из дерева самая распространенная практика. Это
неудивительно, ведь они отличаются такими достоинствами:
- экологичность;
- доступность пиломатериала;
- сравнительно низкая стоимость;
- простота работы с деревом;
- безопасность. Древесина материал мягкий, это снижает риск
серьезного травмирования при падении.
Благодаря свойствам древесины, детские деревянные качели
можно встретить практически в любом частном дворе или на даче. С точки зрения
мобильности они делятся на стационарные и переносные. Качели из дерева, в
отличие от металлических чаще делают стационарными, т.к. дерево не обладает
достаточным, для устойчивого стояния весом (каркас деревянных качелей требует
надежного закрепления).
Исходя из этой особенности необходимо продумать место установки качелей.
Где поставить качели?
Выбирая место нужно учесть:
просматриваемость. Ребенок по возможности должен находиться
на виду;
удаленность. Хозяйственная зона и расположенный рядом водоем
– не место для игр. В случае отсутствия других вариантов для установки, нужно
оградить зоны забором. Также проследить, чтобы качели размещались на безопасном
расстоянии от заборов, стен с окнами, деревьев и т.п. препятствий для полета.
Устанавливать качели рядом с коммуникациями также не стоит;
освещенность и затененность. Место установки должно быть
светлым, но создавать тень, особенно летом в полуденное время;
влажность. Уличные качели из дерева придут в негодность от
чрезмерной влаги, не говоря уже о её вреде для ребенка;
отсутствие сквозняков;
отсутствие ядовитых растений, аллергенов, медоносов, колючих
кустарников;
рельеф поверхности в месте установки. Место установки
качелей нужно выровнять. Тогда не придётся варьировать длину опорных столбов, а
ребенку ничего не будет мешать наслаждаться любимой забавой;
качество крепления каждого узла качелей.
Как сделать качели из дерева своими руками – пошаговая инструкция
Чтобы быть уверенным в надежности, нужно построить качели
самостоятельно. Поэтапное руководство для новичков позволит обозначить
правильное направление и план строительства.
Уход за качелями из дерева
Уход заключается в проверке:
- узлов крепления;
- подвеса;
- сидения;
- качества лакокрасочного покрытия.
Не рекомендуется:
сообщать качели нагрузку большую, нежели та, на которую она
рассчитана;
избегать ударных нагрузок (резкое усаживание на сидение);
стараться распределять вес по плоскости сидения (не
крениться);
кататься перпендикулярно опоре. Подвесные качели
предназначены для катания вдоль опор;
придерживаться умеренной амплитуды раскачивания, чтобы
избежать опрокидывания незакрепленной качели.
Заключение
Надежность установки подвеса и сидения, а заодно и прочность
всей конструкции проверяем на себе. Если под весом взрослого ничего не
деформировалось, то и ребенка выдержит. Тем не менее, деревянные качели для
дачи нуждаются в периодическом осмотре основных узлом и мест крепления.



































